Οικοδομήσιμο οικόπεδο προς Πώληση

€ 625.000
19.400 m²

Σημείωση

Τελευταία ενημέρωση: 23/12/2025
Περιγραφή

κωδικός: 2175

Pazin je grad smješten u srcu istarskog poluotoka te je bogat brojem prirodnih bogatstava, a iz godine u godinu nudi sve veći broj manifestacija te je središte kulturnog, sportskog, obrazovnog, gospodarskog i zabavnog života sa sve većim posjetama turista.



Upravo u jednom malom naselju na svega 5 km od Pazina nalazi se ovo prekrasno imanje sa starinama zavidne površine uz koje se nalazi građevinsko zemljište površine cca 4 000 m2 i izuzetno prostrano poljoprivredno zemljište površine 15 400 m2 što sve zajedno predstavlja izuzetan kompleks imanja sa visokim potencijalom. Na prijedlog je projekt za adaptaciju starina kao i građevinska dozvola te plaćene komunalije. Nekretnine posjeduju brojila struje i vode.

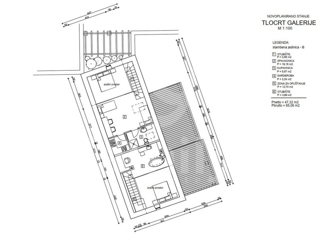
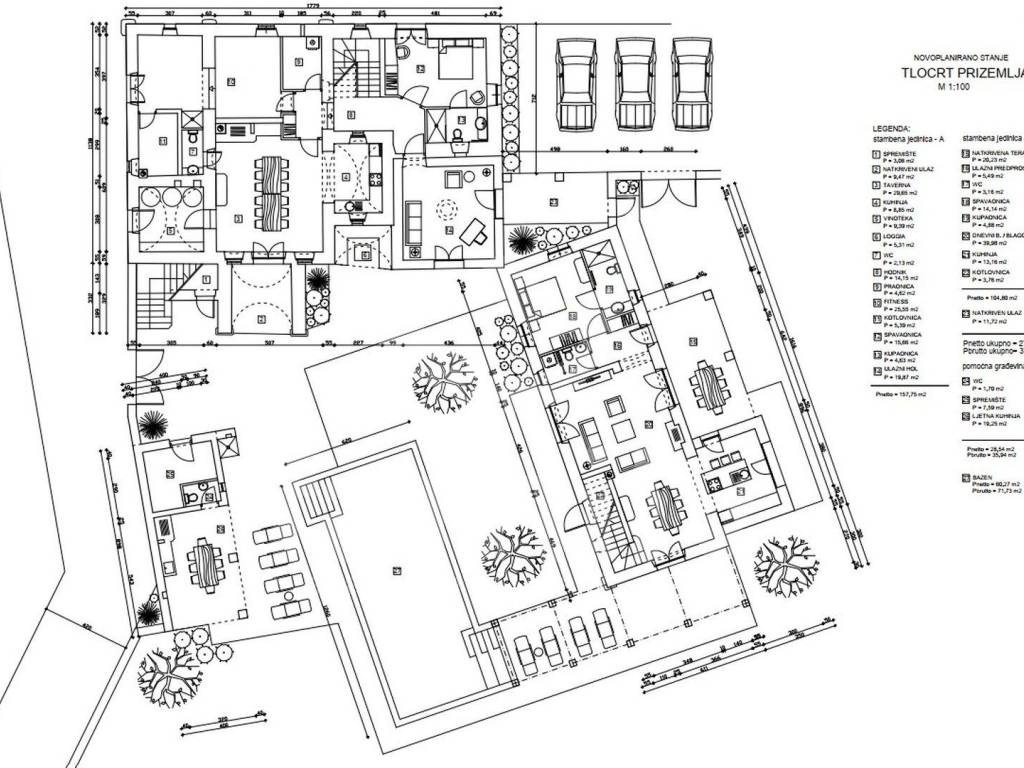
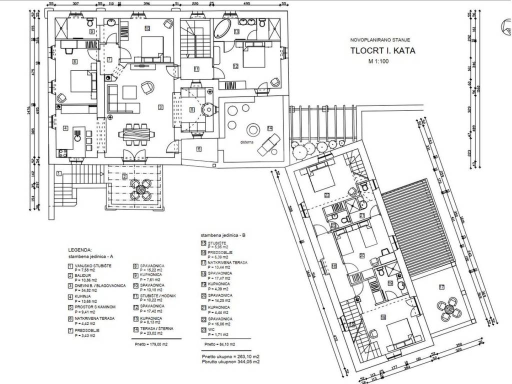
Prizemlje građevine podrazumijeva prema perdloženom projektu natkriveni ulaz, dvije kuhinje, tavernu, spremište, vinoteku, dva toaleta, dvije kupaonice, praonicu, fitness, kotlovnicu, dnevni sa blagovaonicom, dvije spavaće sobe sa pomoćnom građevinom koja bi bila ljetnja kuhinja sa spremištem I toaletom. Prvi kat bi se sastojao od balidura, dnevnog boravka sa blagovaonom, kuhinje, prostora sa kaminom, natkrivene terase, terase sa šternom, šest spavaonica, jednog toaleta, četiri kupaonice. U potkrovlju nekretnine bi se nalazila galerija koja bi se sastojala od stubišta, spavaonice, kupaonicem, garderobe, zone za opuštanje.

Rustikalno imanje može predstavljati kompleks kamenih kuća u svrhu turizma ili obiteljskog života ili pak bavljenja turističko – poljoprivrednim zanimanjima, OPG-om i slično.

Osim adaptacije starine prema projektu postoji mogućnost izgradnje još objekata obzirom na površinu građevinskog zemljišta te izgradnje različitih terena, bazena itd obzirom na prostrano okućnicu u smislu poljoprivrednog zemljišta.

Nekretnina je vrijedna pažnje i veoma interesantna obzirom na svoju površinu građevina, površinu građevinskog i poljoprivrednog zemljišta, mirnu lokaciju te mogućnost bavljenja različitim djelatnostima u smislu turizma, ugostiteljstva, obiteljskog poljoprivredno gospodarstvo (OPG) itd. 

ZA SVE OSTALE INFORMACIJE NAZVATI NA:

+385981748680

dean.zunic@family-nekretnine.hr

Dean Žunić

Licencirani agent
Χαρακτηριστικά
Συμβόλαιο
Πώληση
Τύπος
Οικοδομήσιμο οικόπεδο
Εμβαδόν
19.400 m²
Πληροφορίες τιμής
Τιμή
€ 625.000
Τιμή ανά m²
32 €/m²
Ανακαλύψτε κάθε γωνιά του ακινήτου
+11
Πρόσθετες επιλογές

Επικοινώνησε με τον αγγελιοδότη

Ή