map icon

Δυάρι 51 τμ, Okrug

Okrug
€ 350.000
2
51 m²
1

Σημείωση

Τελευταία ενημέρωση: 05/05/2026
Περιγραφή

κωδικός: 2070

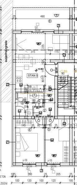
Na prodaju dvosobni stan u Okrugu Gornjem, otok Čiovo, svega 300 metara od mora.
Stan ima 50,19 m, balkon (8,82 m) i pripadajućom krovnom terasom ( 60,40m)te se sastoji od kuhinje s dnevnim boravkom, hodnika, dvije spavaće sobe i kupaonice.
Uz stan dolazi vlastito vanjsko parkirno mjesto.
Zgrada se gradi modernim materijalima, a završetak radova očekuje se do lipnja 2025. godine, s useljenjem do kraja godine.
Razgledavanje je moguće isključivo nakon potpisivanja Ugovora o posredovanju, sukladno Zakonu o prometu nekretninama.
Agencijska provizija iznosi 2%+pdv.
Za više informacija, kontaktirajte nas.
Petra- 099 165 5551
Εάν θέλετε να μάθετε περισσότερα, μπορείτε να μιλήσετε με Petra Pahor.
Χαρακτηριστικά
Τύπος
Διαμέρισμα
Συμβόλαιο
Πώληση
Εμβαδόν
51 m²
Δωμάτια
2
Υπνοδωμάτια
2
Μπάνια
1
Επιπλωμένο
Όχι
Κλιματισμός
Κρύο/ζέστη
Πληροφορίες τιμής
Τιμή
€ 350.000
Τιμή ανά m²
6.863 €/m²
Ενεργειακή απόδοση
  • Κλιματιστικό μηχάνημα

    Κρύο/ζέστη
  • Ενεργειακή πιστοποίηση

    Δεν υπόκειται
Ανακαλύψτε κάθε γωνιά του ακινήτου
+6
Πρόσθετες επιλογές

Επικοινώνησε με τον αγγελιοδότη

Ή