Οικοδομήσιμο οικόπεδο προς Πώληση

€ 565.000
1.675 m²

Σημείωση

Τελευταία ενημέρωση: 28/04/2026
Περιγραφή

κωδικός: 236

Prodajemo zemljište površine 1675 m² s pravomoćnom građevinskom dozvolom za stambeni objekt s bazenom.
Zemljište se sastoji od dvije čestice, 774 m² građevinsko i 901 m² poljoprivredno.
Primošten - Kamenarska ulica.
Sa zemljišta je pogled na more, Primošten i Kornate.
Plaćen je komunalni doprinos i priključak na vodovod.
Vlasnički list 1/1 bez tereta.
NAPOMENA: mogućnost kupnje susjednog zemljišta površine 1.166 m² po cijeni od: 250 €/m².
Agencijska provizija iznosi 1,5% + PDV od cijene.
Moguća kompenzacija za stan u Primostenu, Rovinju, Zagrebu od cca. 70-80 m² sa parkingom / garažom ili zemljiste od 700m² u Zagrebu.
ŽELITE LI PRODATI SVOJU NEKRETNINU?AGENCIJSKA USLUGA KOD PRODAJE VEĆ OD 2%!Više od 28 godina iskustva u prodaji nekretnina!Brza i sigurna prodaja nekretnina!Obratite nam se s povjerenjem!
Za ovu nekretninu kontaktirati agenta s položenim stručnim ispitom Domagoj MiškecMob: +385 91 3730 099 - Viber, WhatsAppTel: 01 3730 099, 01 3734 793E-mail: kontakt@euro-interijeri.hr, domagoj.miskec@euro-interijeri.hrwww.euro-interijeri.hrEuro-interijeri - agencija za poslovanje nekretninama.
Sjedište agencije/adresa: Ante Topić Mimare 3a, Zagreb.
Εάν θέλετε να μάθετε περισσότερα, μπορείτε να μιλήσετε με Domagoj Miškec.
Χαρακτηριστικά
Συμβόλαιο
Πώληση
Τύπος
Οικοδομήσιμο οικόπεδο
Εμβαδόν
1.675 m²
Πληροφορίες τιμής
Τιμή
€ 565.000
Τιμή ανά m²
337 €/m²
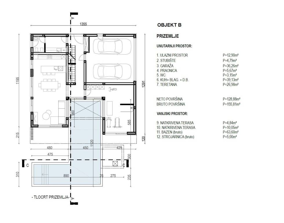
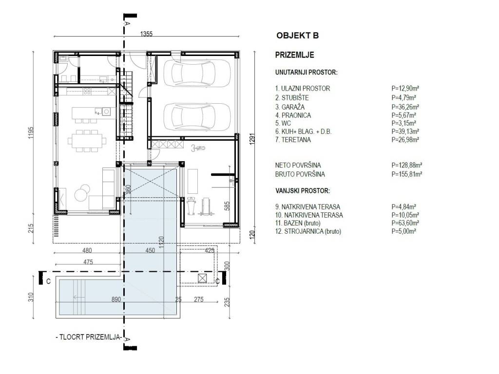
Σχέδιο ακινήτου
Primosten, gradjevinsko zemljiste - Primosten Burnji - tlocrt 1
Primosten, gradjevinsko zemljiste - Primosten Burnji - tlocrt 2
Ανακαλύψτε κάθε γωνιά του ακινήτου
+11
Πρόσθετες επιλογές

Επικοινώνησε με τον αγγελιοδότη

Ή