Οικοδομήσιμο οικόπεδο προς Πώληση

€ 340.000
613 m²

Σημείωση

Τελευταία ενημέρωση: 03/04/2026
Περιγραφή

κωδικός: 235

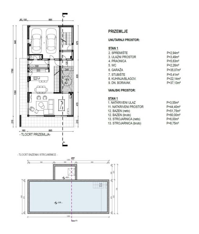
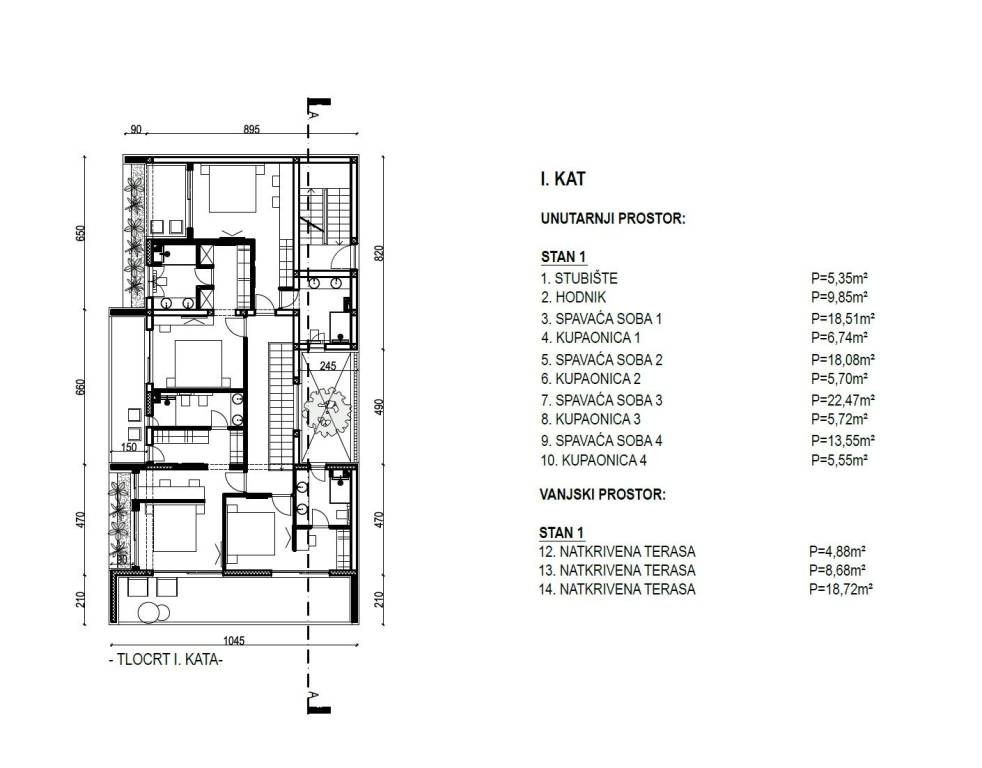
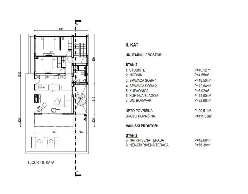
Prodajemo zemljište površine 613 m² s pravomoćnom građevinskom dozvolom za objekt s dva stana i bazenom.
Primošten - Kamenarska ulica.
Sa zemljišta je pogled na more, Primošten i Kornate.
Plaćen je komunalni doprinos i priključak na vodovod.
Stan 1 - dvoetažan (prizemlje i prvi kat) s bazenom i garažom.
Stan 2 - jednoetažan na drugome katu.
Vlasnički list 1/1 bez tereta.
Agencijska provizija iznosi 1,5% + PDV od cijene.
ŽELITE LI PRODATI SVOJU NEKRETNINU?AGENCIJSKA USLUGA KOD PRODAJE VEĆ OD 2%!Više od 28 godina iskustva u prodaji nekretnina!Brza i sigurna prodaja nekretnina!Obratite nam se s povjerenjem!
Za ovu nekretninu kontaktirati agenta s položenim stručnim ispitom Domagoj MiškecMob: +385 91 3730 099 - Viber, WhatsAppTel: 01 3730 099, 01 3734 793E-mail: kontakt@euro-interijeri.hr, domagoj.miskec@euro-interijeri.hrwww.euro-interijeri.hrEuro-interijeri - agencija za poslovanje nekretninama.
Sjedište agencije/adresa: Ante Topić Mimare 3a, Zagreb.
Εάν θέλετε να μάθετε περισσότερα, μπορείτε να μιλήσετε με Domagoj Miškec.
Χαρακτηριστικά
Συμβόλαιο
Πώληση
Τύπος
Οικοδομήσιμο οικόπεδο
Εμβαδόν
613 m²
Πληροφορίες τιμής
Τιμή
€ 340.000
Τιμή ανά m²
555 €/m²
Σχέδιο ακινήτου
Primosten, Primosten Burnji
Primosten, Primosten Burnji
Primosten, Primosten Burnji
Ανακαλύψτε κάθε γωνιά του ακινήτου
+4
Πρόσθετες επιλογές

Επικοινώνησε με τον αγγελιοδότη

Ή