Οικοδομήσιμο οικόπεδο προς Πώληση

€ 75.000
564 m²

Σημείωση

Τελευταία ενημέρωση: 04/02/2026
Περιγραφή

κωδικός: 25299

ISTRA, VIŽINADA - Zemljište s pravomoćnom građevinskom dozvolom

Pitoreskna Vižinada, općina stara više od 1000 godina, smjestila se na sjeverozapadu Istre na uzvisini ruba doline rijeke Mirne, na 257 metara nadmorske visine i pod svojim okriljem broji 27 naselja. Vižinada je puna neopisivog mira ali i života, energije, hedonizma i gastronomije, s pogledom toliko impozantnim da je vječna inspiracija o čijoj ljepoti ponajbolje svjedoči činjenica kako je nerijetko poslužila kao kulisa poznatim svjetskim filmovima.
Općina Vižinada, općina s jednim od najljepših pogleda u Istri, se smatra i jednom od najvinarskijih krajeva u Republici Hrvatskoj u kojoj ima više od milijun trsova loza koji zbog kvalitete zemlje rađaju svjetski nagrađivana vina posebnih mirisa i okusa. Ova bajkovita općina, koja je postala sinonim za gastronomiju i vrhunske vinare i uljare, oduševljava svojom bogatom prošlošću, kulturnom baštinom i suživotom čovjeka i prirode. Vižinada i njeni stanovnici besprijekorno sjedinjuju bogatu prošlosti i veličanstvenu prirodu sa zahtjevima modernoga doba.

U okolici Vižinade, na prodaju je zemljište s pravomoćnom građevinskom dozvolom.
Zemljište se nalazi u pitomom naselju na rubu građevinske zone i pristupa mu se makadamskim putem.
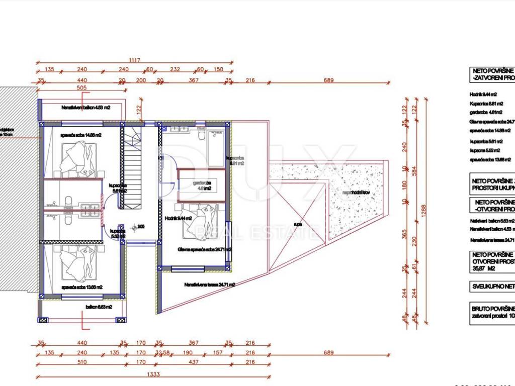
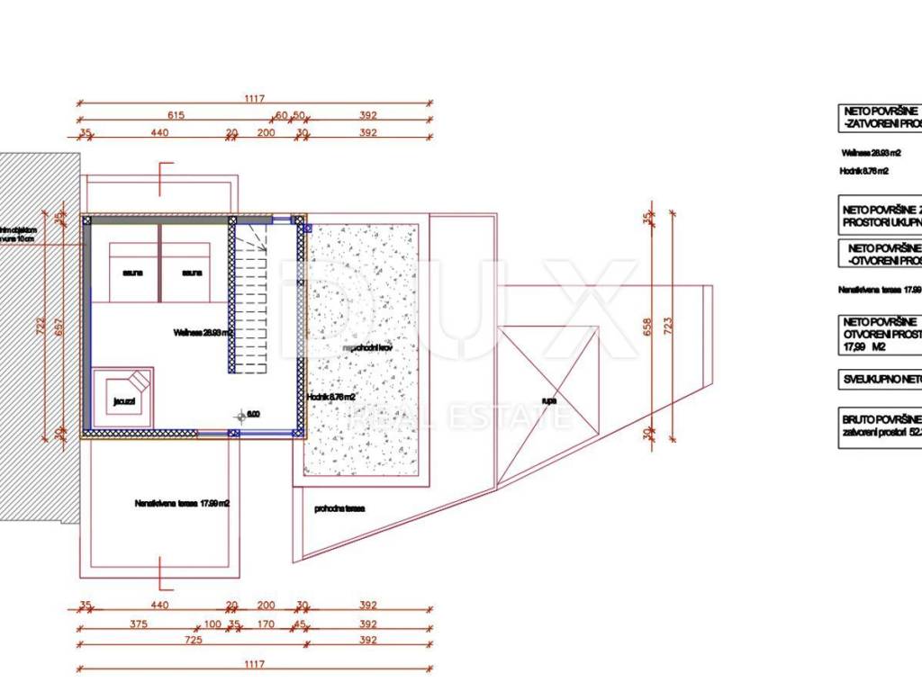
Po građevinskoj dozvoli dopuštena je gradnja građevine stambene namjene netto površine 317,19 m i pomoćne građevine; bazena netto površine 17,77 m.
Projektirana je kao dvoetažna kuća s jednom stambenom jedinicom modernog, bezvremenskog dizajna koja se sastoji od prostora otvorenog koncepta koji ujedinjuje dnevni boravak, blagovaonicu i kuhinju, četiri spavaće sobe s vlastitim kupaonicama, wellness prostora, teretane, gostinjskog toaleta, praonice rublja i prostorije za tehniku.

Glavnim projektom predviđena je gradnja dviju poluugrađenih građevina te je zemljište pokraj također na prodaju kao zemljište s betoniranim nadtemeljem; www.dux-nekretnine.hr/zemljiste/istra-vizinada-zemljiste-s-pravomocnom-gradevinskom-dozvolom

Poštovani klijenti, agencijska provizija naplaćuje se u skladu s Općim uvjetima poslovanja:
www.dux-nekretnine.hr/opci-uvjeti-poslovanja

ID KOD AGENCIJE: 25299

Iva Zajc
Agent s licencom
Mob: +385 92 235 9472
Tel: +385 91 480 8808
E-mail: iva@dux-istra.com
www.dux-istra.com
Εάν θέλετε να μάθετε περισσότερα, μπορείτε να μιλήσετε με Iva Zajc.
Χαρακτηριστικά
Συμβόλαιο
Πώληση
Τύπος
Οικοδομήσιμο οικόπεδο
Εμβαδόν
564 m²
Πληροφορίες τιμής
Τιμή
€ 75.000
Τιμή ανά m²
133 €/m²
Ανακαλύψτε κάθε γωνιά του ακινήτου
+9
Πρόσθετες επιλογές

Επικοινώνησε με τον αγγελιοδότη

Ή