Τριάρι νέο, ισόγειο, Sukošan

€ 354.000
3
1 m²
1
ΙΣ
Όχι
Βεράντα

Σημείωση

Τελευταία ενημέρωση: 28/11/2025
Περιγραφή

This description has been translated automatically and may not be accurate

κωδικός: RE490865

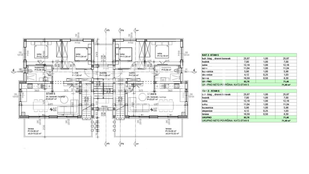
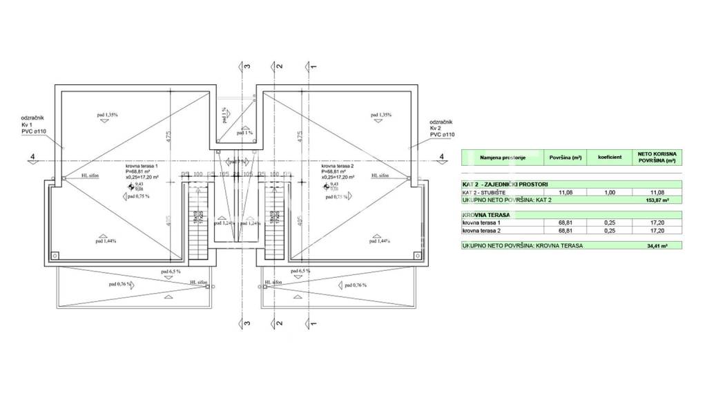
A three-room apartment with a surface area of 88.60 m², located on the second floor of a modern residential building in Sukošan near Zadar. The apartment is located in a quiet location, just a few minutes' walk from the sea and all important amenities. It consists of a hallway, two bedrooms, a bathroom, a kitchen, and a living room with access to a terrace. The apartment also has its own staircase leading to a separate roof terrace with a total area of 68.81 m² and an outdoor parking space. The apartment will be equipped with top-quality materials and equipment: • Reinforced concrete construction, brick walls • High-quality wood-aluminum carpentry • Italian porcelain tiles of 1st class (Marazzi/Mirage) • Oak parquet in the bedrooms • Underfloor heating in the bathroom and living room • Mitsubishi multi-split air conditioning system • Stone in the staircase and at the entrance to the building • Villeroy & Boch sanitary ware • Parking space paved with concrete blocks • Landscaped gardens and horticulturally designed surroundings • Anti-theft entrance door The building is currently under construction, and the completion of works is planned by January 2026. This property is an excellent opportunity for family life, but also as an investment for tourist rental. For more information or to arrange a viewing, feel free to contact us.
Χαρακτηριστικά
Τύπος
Διαμέρισμα
Συμβόλαιο
Πώληση
Όροφος
Ισόγειο
Σύνολο ορόφων
2
Ανελκυστήρας
Όχι
Εμβαδόν
1 m²
Δωμάτια
3
Υπνοδωμάτια
2
Μπάνια
1
Βεράντα
Ναι
Γκαράζ, χώροι στάθμευσης
1 εξωτερικό
Θέρμανση
Κεντρική, θέρμανση αέρος, ρεύμα
Κλιματισμός
Αυτόνομη, κρύο/ζέστη
Απόσταση από τη θάλασσα
200 m
Πληροφορίες τιμής
Τιμή
€ 354.000
Τιμή ανά m²
354.000 €/m²
Ενεργειακή απόδοση

Κατανάλωση ενέργειας

Α

Σχέδιο ακινήτου
Πρόσθετες επιλογές

Επικοινώνησε με τον αγγελιοδότη

Ή