Γραφείο προς Ενοικίαση

€ 6.500/μήνα
5+
2

Σημείωση

Τελευταία ενημέρωση: 26/11/2025
Περιγραφή

κωδικός: RE635233

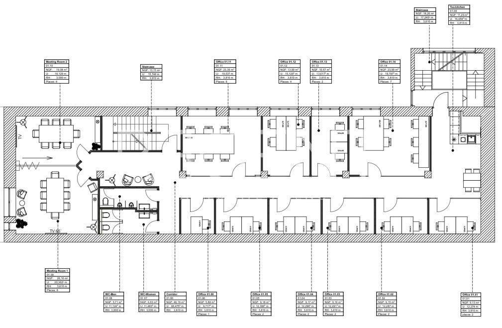
Na prvom katu uredne poslovne zgrade, u neposrednoj blizini Džamije, nalazi se funkcionalan poslovni prostor ukupne površine 240,6 m². Prostor je idealan za urede, edukacijski centar, konzultantske djelatnosti ili veće tvrtke koje traže reprezentativnu lokaciju u centru grada. Sastoji se od dva veća prostora za sastanke (26,16 m² i 19,08 m²), četrnaest ureda različitih površina, kuhinje, hodnika te odvojenih sanitarija za muškarce i žene. Sve prostorije su klimatizirane i imaju priključak za internet. Prostor je moguće prilagoditi prema potrebama budućeg najmoprimca, što ga čini idealnim za tvrtke koje žele urediti radni ambijent po vlastitoj viziji. Zgrada ima uredno održavane zajedničke prostore, a u blizini se nalaze javni prijevoz, restorani, kafići i trgovine. Lokacija osigurava jednostavan pristup i dobru prometnu povezanost s ostatkom grada. Dostupan za najam od 1. siječnja 2026. Za više informacija ili dogovor oko razgledavanja, slobodno nas kontaktirajte!
Χαρακτηριστικά
Συμβόλαιο
Ενοικίαση
Τύπος
Γραφείο
Δωμάτια
5+ δωμάτια, 2 μπάνια
Σύνολο ορόφων
2
Γκαράζ, χώροι στάθμευσης
1 σε πάρκινγκ/κλειστό πάρκινγκ
Διαθεσιμότητα
Διαθέσιμο
Άλλα χαρακτηριστικά
  • Καλωδίωση
Πληροφορίες τιμής
Τιμή
€ 6.500/μήνα
Λεπτομέρειες κόστους
Εγγύηση
Δεν αναφέρεται
Ενεργειακή απόδοση

Κατανάλωση ενέργειας

Β

Σχέδιο ακινήτου
Ανακαλύψτε κάθε γωνιά του ακινήτου
+7
Πρόσθετες επιλογές

Επικοινώνησε με τον αγγελιοδότη

Ή