1/3


Κατάστημα - Εμπορικός χώρος προς Πώληση
€ 351.000
Τελευταία ενημέρωση: 12/12/2025
Περιγραφή
κωδικός: 102
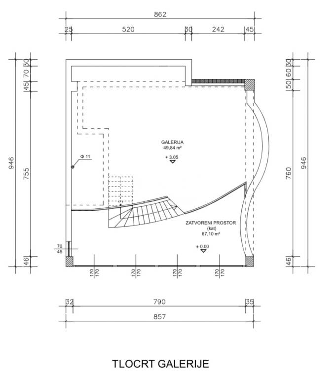
Zagreb, Knežija, Horvaćanska cesta, renoviran i adaptiran dvoetažan lokal u prizemlju poslovno stambene zgrade na odličnoj lokaciji.
Trenutno u fazi renovacije, moguće ga prilagoditi prema potrebama kupca. Dvije etaže, donja 60 m2 i gornja 57 m2, trenutno sve "open space".
Veliki stakleni izlog, visina stropa 6,10 cm. Odlična lokacija, tramvaj i poslovna zone, dućani, kafići svi sadržaju u prizemlju iste zgrade.
Ostale informacije na upit.
Χαρακτηριστικά
- Συμβόλαιο
- Πώληση
- Εμβαδόν
- 117 m²
- Δωμάτια
- 3 δωμάτια, 1 μπάνιο
Άλλα χαρακτηριστικά
- Πόρτα ασφαλείας
- Συναγερμός
- Προσανατολισμός νότος
Πληροφορίες τιμής
- Τιμή
- € 351.000
- Τιμή ανά m²
- 3.000 €/m²
Λεπτομέρειες κόστους
- Κοινόχρηστα
- Χωρίς κοινόχρηστα έξοδα
Ενεργειακή απόδοση
Έτος κατασκευής
1985Κατάσταση
Νεόδμητο / Υπό κατασκευήΘέρμανση
Κεντρική, θερμαντικά σώματα, τηλεθέρμανσηΕνεργειακή πιστοποίηση
Χωρίς ταξινόμηση
Σχέδιο ακινήτου
Πρόσθετες επιλογές