map icon

Διαμέρισμα δεύτερος όροφος, Zrinjevac - Cvjetni trg, Ζάγκρεμπ

ΖάγκρεμπZrinjevac - Cvjetni trg
€ 680.000
5
150 m²
3
2

Σημείωση

Τελευταία ενημέρωση: 05/03/2026
Περιγραφή

κωδικός: 74

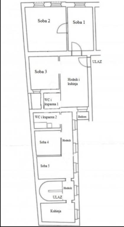
Zagreb, Zrinjevac, stan sa ogromnim potencijalom na top lokaciji u gradu. Nalazi u zgradi koja prolazi kompletnu statičku obnovu 3. razine,  a sredstva za obnovu su u potpunosti financirana od strane Republike Hrvatske i Grada Zagreba. Stan ima 150 m2 i ogroman volumen
 
Sastoji se od prostranog ulaznog hodnika, šest prostorija, dvije kupaonice te balkona. Stan je podijeljen na dva dijela - manji stan od 55 m2 s ulazom iz dvorišta i pogledom na dvorište, već adaptiran, te veći stan od 92 m2 s ulazom s ulice i pogledom na park Zrinjevac, koji zahtijeva adaptaciju.
 
Visina stropa od 350 cm, starogradski prostor.
 
Strogi centar , A+ lokacija, pogled na park Zrinjevac.
 
Ostale informacije na upit.
Χαρακτηριστικά
Τύπος
Διαμέρισμα
Συμβόλαιο
Πώληση
Όροφος
2 όροφος
Σύνολο ορόφων
4
Εμβαδόν
150 m²
Δωμάτια
5
Υπνοδωμάτια
4
Μπάνια
3
Θέρμανση
Κεντρική, θερμαντικά σώματα, τροφοδοσία υγραέριο
Θέα
Πανοραμικό
Άλλα χαρακτηριστικά
  • Μονός υαλοπίνακας/ Συνθετικά κουφώματα
Πληροφορίες τιμής
Τιμή
€ 680.000
Τιμή ανά m²
4.533 €/m²
Λεπτομέρειες κόστους
Κοινόχρηστα
Χωρίς κοινόχρηστα έξοδα
Ενεργειακή απόδοση
  • Έτος κατασκευής

    1900
  • Θέρμανση

    Κεντρική, θερμαντικά σώματα, τροφοδοσία υγραέριο
  • Ενεργειακή πιστοποίηση

    Χωρίς ταξινόμηση
Σχέδιο ακινήτου
Zagreb, Donji Grad
Πρόσθετες επιλογές

Επικοινώνησε με τον αγγελιοδότη

Ή