Διαμέρισμα Χρήζει ανακαίνισης, πρώτος όροφος, August Šenoa, Ζάγκρεμπ

€ 600.000
5
250 m²
3
1

Σημείωση

Τελευταία ενημέρωση: 12/12/2025
Περιγραφή

κωδικός: 69

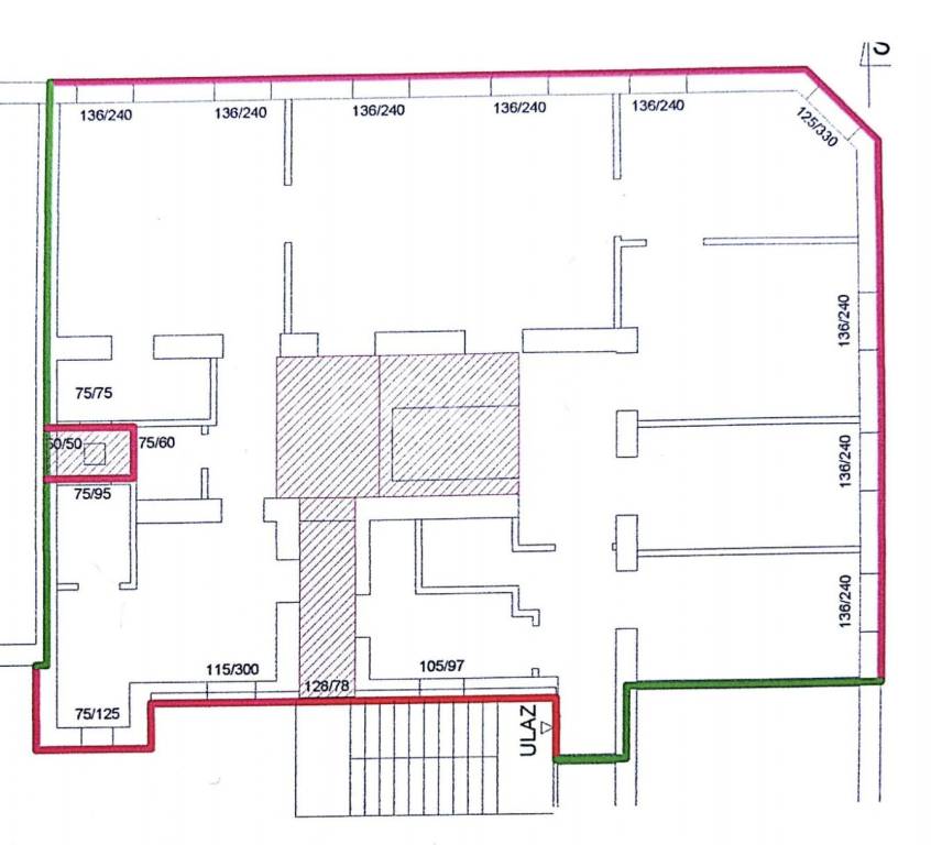
Zagreb, Donji grad, Petrinjska ulica, prekrasan građanski stan od cca 250 m2 sa ogromnim potencijalom na prvom katu održavane starogradnje.
 
Klasičan starogradski tlocrt, 6 salona, dva balkona, velika kuhinja na dvorišnu stranu. Visina stropa 380 cm, novija vanjska stolarija. Stan se treba adaptirati, idealan kao stambeni ili poslovni prostor.
 
Odlična lokacija u samom centru grada, uz sami Zrinjevac i Tomislavov trg. Stanu pripada veliki dio tavana i podruma.
 
Ostale informacije na upit.
 
Χαρακτηριστικά
Τύπος
Διαμέρισμα
Συμβόλαιο
Πώληση
Όροφος
1 όροφος
Εμβαδόν
250 m²
Δωμάτια
5
Υπνοδωμάτια
4
Μπάνια
3
Θέρμανση
Κεντρική, θερμαντικά σώματα, τροφοδοσία υγραέριο
Άλλα χαρακτηριστικά
  • Μονός υαλοπίνακας/ Ξύλινα κουφώματα
  • Πόρτα ασφαλείας
Πληροφορίες τιμής
Τιμή
€ 600.000
Τιμή ανά m²
2.400 €/m²
Λεπτομέρειες κόστους
Κοινόχρηστα
Χωρίς κοινόχρηστα έξοδα
Ενεργειακή απόδοση
  • Έτος κατασκευής

    1930
  • Κατάσταση

    Χρήζει ανακαίνισης
  • Θέρμανση

    Κεντρική, θερμαντικά σώματα, τροφοδοσία υγραέριο
  • Ενεργειακή πιστοποίηση

    Χωρίς ταξινόμηση
Σχέδιο ακινήτου
Zagreb, Donji Grad
Ανακαλύψτε κάθε γωνιά του ακινήτου
+2
Πρόσθετες επιλογές

Επικοινώνησε με τον αγγελιοδότη

Ή