Τριάρι άριστη κατάσταση, πρώτος όροφος, Vukomerec-Borongaj, Ζάγκρεμπ

€ 324.000
3
66 m²
1
1
Ναι

Σημείωση

Τελευταία ενημέρωση: 15/04/2026
Περιγραφή

This description has been translated automatically and may not be accurate

κωδικός: 1147-1

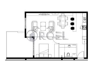
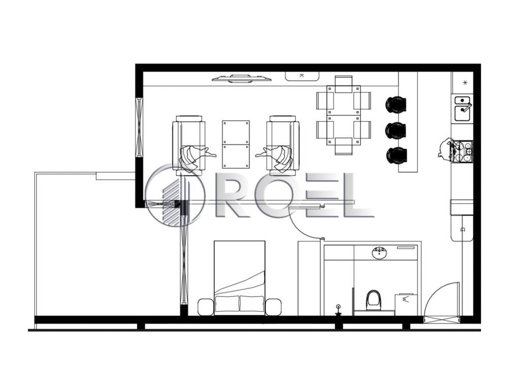
A two-bedroom apartment with a net usable area of 65.57 m is for sale, located in a quiet and well-connected part of Pešćenica. The living area is 52.6 m, and the apartment is located on the first floor of a well-maintained building with an elevator.
The apartment consists of a living room connected to the kitchen and dining room, a bedroom, a bathroom, a hallway and a covered loggia of 13.71 m, which is accessed from the living area. The apartment comes with an outdoor parking space of 12.5 m and a storage room of 5 m, which provides additional storage space.
The apartment's equipment includes aluminum joinery with triple-glazed windows, electric blinds, first-class parquet, first-class ceramics and quality sanitary ware from renowned manufacturers. The heating is gas central heating, with underfloor heating in the bathroom and an additional heat pump that enables energy efficiency.
The location is well connected by public transport. Nearby are tram lines 2, 3 and 13 and several bus lines that provide easy connection to the city center, Kvatrić, Lower and Upper Town and the rest of the eastern part of Zagreb. The tram station is a few minutes walk away.Nearby are supermarkets, smaller shops, a post office, a pharmacy, banks, a health center, kindergartens, an elementary school, sports facilities and green areas suitable for recreation. The neighborhood is organized and pleasant for everyday life.
The apartment is ready to move in and suitable for living or long-term investment. For additional information or to arrange a viewing, we are at your disposal.
Εάν θέλετε να μάθετε περισσότερα, μπορείτε να μιλήσετε με Maja Nikolić.
Χαρακτηριστικά
Τύπος
Διαμέρισμα
Συμβόλαιο
Πώληση
Όροφος
1 όροφος
Ανελκυστήρας
Ναι
Εμβαδόν
66 m²
Δωμάτια
3
Υπνοδωμάτια
1
Μπάνια
1
Κλιματισμός
Κεντρική, κρύο/ζέστη
Άλλα χαρακτηριστικά
  • Πόρτα ασφαλείας
Πληροφορίες τιμής
Τιμή
€ 324.000
Τιμή ανά m²
4.909 €/m²
Ενεργειακή απόδοση
  • Έτος κατασκευής

    2025
  • Κατάσταση

    Πολύ καλή / Ανακαινισμένο
  • Κλιματιστικό μηχάνημα

    Κεντρική, κρύο/ζέστη
  • Ενεργειακή πιστοποίηση

    Χωρίς ταξινόμηση
Ανακαλύψτε κάθε γωνιά του ακινήτου
+13
Πρόσθετες επιλογές

Επικοινώνησε με τον αγγελιοδότη

Ή