2-room flat third floor, Staro Brestje, Zagreb

€ 251,328
2
78 m²
1
3
Yes
Balcony

Note

Listing updated on 02/10/2026
Description

reference: iro-4384

Molim zvati na broj telefona +385 91 6144793 !!

ZA OVU NEKRETNINU KUPAC NE PLAĆA AGENCIJSKU PROVIZIJU!

Trosobni stan sa balkonom – 3. kat, novogradnja Sesvete

NOVOGRADNJA – KVALITETAN STAN U MIRNOM DIJELU SESVETA, UZ ŠUMU

U ponudi je stan u sklopu suvremene novogradnje, smještenog u višestambenoj zgradi s ukupno 15 stambenih jedinica.

Projekt je pažljivo arhitektonski osmišljen s naglaskom na funkcionalne tlocrte, maksimalnu iskoristivost prostora i obilje prirodnog svjetla. Svaki stan ima prostranu terasu, osmišljenu kao produžetak životnog prostora – mjesto za mir, odmor i svakodnevni užitak. Visoka kvaliteta gradnje, odabir provjerenih materijala i suradnja s iskusnim izvođačima jamče dugoročnu vrijednost nekretnine i ugodan boravak u novom domu.

LOKACIJA

Projekt se nalazi na izvrsnoj lokaciji, svega 700 metara od centra Sesveta, u mirnom i zelenom okruženju, neposredno uz šumu.

Svi sadržaji potrebni za kvalitetan i praktičan svakodnevni život nalaze se u neposrednoj blizini:

- osnovna i srednja škola


- trgovački centri (Kaufland, Konzum i dr.)


- pošta, dom zdravlja


- banke, ljekarne i ostali urbani sadržaji



Lokacija nudi savršen balans između urbanog života i prirodnog okruženja.

ZGRADA I DODATNI SADRŽAJI

- garažna parkirna mjesta i spremišta u suterenu zgrade


- lift koji povezuje sve etaže


- manji broj stanova osigurava mir, privatnost i ugodnu susjedsku atmosferu



KONSTRUKCIJA I OPREMA

Zgrada je građena prema visokim standardima moderne gradnje:

- armirano-betonska konstrukcija (temelji, stupovi, grede, ploče i zidovi)


- kvalitetna toplinska i hidroizolacija


- ravni neprohodni krov s blagim nagibom


- termo-fasada debljine 15 cm


- PVC stolarija s troslojnim ostakljenjem za vrhunsku toplinsku i zvučnu izolaciju


- projektirana otpornost na potres 8,0 – 9,0 stupnjeva po Richteru



Zgrada je projektirana u energetskom razredu A, što osigurava niže režijske troškove i visoku energetsku učinkovitost.

ROK IZGRADNJE

Planirani završetak gradnje: kraj 2026. godine.

Trosobni stan sa balkonom – 3. kat, novogradnja Sesvete

U ponudi je funkcionalan i ugodno organiziran trosobni stan smješten na 3. katu moderne novogradnje s manjim brojem stambenih jedinica, u mirnom dijelu Sesveta, okružen zelenilom.

Stan se ističe dobro promišljenim rasporedom, obiljem prirodnog svjetla te logičnom podjelom prostora, što ga čini idealnim izborom za parove, manje obitelji ili kao dugoročnu investiciju.

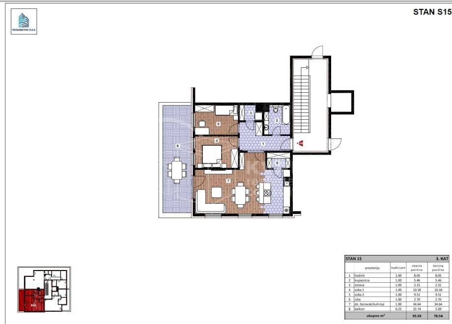
Raspored prostora:

- ulazni hodnik


- prostrani dnevni boravak s kuhinjom i blagovaonicom


- dvije spavaće sobe


- kupaonica


- ostava


- dodatna izba


- balkon, kao ugodan vanjski prostor za opuštanje



Ukupna stvarna površina stana iznosi 95,59 m2, dok obračunska površina iznosi 78,54 m2.

Dnevni boravak s kuhinjom i blagovaonicom, površine od 34,64 m2, čini središnji dio stana te pruža osjećaj otvorenosti i komfora, s izravnim izlazom na balkon.

Stan je projektiran s naglaskom na:

- racionalan i funkcionalan tlocrt


- optimalnu iskoristivost kvadrature


- ugodan odnos dnevnog i noćnog dijela


- kvalitetu gradnje i energetsku učinkovitost



Zgrada ima lift, a garažna parkirna mjesta i spremišta nalaze se u suterenu.

Garažna parkirna mjesta i spremišta kupuju se zasebno, prema dostupnosti. Cijena iznosi 1.600 EUR/m2.



ZA VIŠE INFORMACIJA I DOGOVOR OKO PREZENTACIJE MOLIMO ZVATI NA:

mob: 091 6144793
mail: info@kvadar-nekretnine.hr
www.kvadar-nekretnine.hr
If you want to know more, you can talk to Kvadar1 Kvadar1.
Features
Type
Apartment | Medium property class
Contract
Sale
Floor
3 floor
Building floors
3
Lift
Yes
Surface
78 m²
Rooms
2
Bedrooms
2
Bathrooms
1
Balcony
Yes
Terrace
No
Heating
Independent, with radiators, gas powered
Price information
Price
€ 251,328
Price per m²
3,222 €/m²
Energy efficiency

Energy consumption

A

Discover every corner of the property
+3
Additional options

Contact the advertiser

Or