3-room flat first floor, Kustošija Centar, Zagreb

€ 340,000
3
119 m²
1
No

Note

Listing updated on 02/25/2026
Description

reference: I32487

PRODAJA STAN ČRNOMEREC ILICA 119 M2

Prodaje se luksuzan stan koncipiran kao poslovni prostor uz mogućnost preinake u stambeni prostor.
Nalazi se jednu autobusnu stanicu od okretišta Črnomerec te se na 119 m2 prostire ulazni prostor, odvojena radna soba, čajna kuhinja, sanitarni čvor i velika svjetla radna soba koja služi kao prostor za sastanke s mogućnošću prenamjene u dnevni boravak i kuhinju te dodatnu spavaću sobu.
Prostor ima plinsko etažno grijanje i klimatizaciju, također opremljen je i stropnim ozvučenjem, alarmom te video nadzorom.
Na podovima je bambus parket s čak osam slojeva laka.

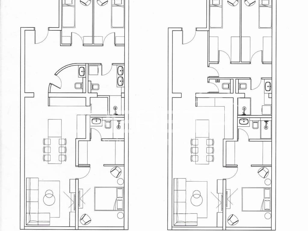
Priložena su tlocrtna rješenja za novi raspored stana i u tom slučaju moguća je prenamjene u čak četverosobni stambeni prostor.

Stan se nalazi u manjoj, vrlo urednoj zgradi izgrađenoj 2001. godine sa samo tri stana. U vlasničkom listu naveden je kao ured stoga je kupnja moguća isključivo putem vlastitih sredstava.

Stanu pripadaju čak dva parkirna mjesta u dvorištu zgrade i prodaju se po cijeni od 12.500 eura za pojedinačno parkirno mjesto.

Kontaktirajte nas za više informacija o ovoj odličnoj prilici za stanovanje ili investiciju.
Features
Type
Apartment
Contract
Sale
Floor
1 floor
Lift
No
Surface
119 m²
Rooms
3
Bedrooms
2
Furnished
No
Garage, car parking
1 parking space
Heating
Central, gas powered
Air conditioning
Cold/hot
Price information
Price
€ 340,000
Price per m²
2,857 €/m²
Energy efficiency

Energy consumption

B

Discover every corner of the property
+9
Additional options

Contact the advertiser

Or