2-room flat new, ground floor, Dubrava – Klaka - Miroševac, Zagreb

€ 219,743
2
59 m²
G
No

Note

Listing updated on 04/22/2026
Description

reference: I33245

PRODAJA, STAN, NOVOGRADNJA, ZAGREB, GORNJA DUBRAVA, ČUČERSKA CESTA, 59,00 m2, 2-soban

Prodaje se 2-soban stan u prizemlju novogradnje u Gornjoj Dubravi!

Na lijepoj lokaciji prodaje se prostrani trosobni stan idealan za miran i kvalitetan obiteljski život.

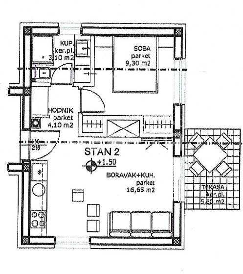
Stan S2 nalazi se u prizemlju suvremeno projektirane zgrade s ukupno pet stanova, što osigurava visoku razinu privatnosti i udobnosti. Zgrada ima tri etaže, a planirani završetak radova i useljenje predviđeni su za jesen 2026. godine.

Površina zatvorenog dijela stana: 33,15m

Tlocrtna organizacija:
- dnevni boravak s blagovaonicom i kuhinjom u open-space konceptu
- 1 spavaća soba
- kupaonica s wc-om
- terasa (5,60m2)
- vrt (83,00m2)
- pripadajuće spremište
- garažno parkirno mjesto (15,56m2)
- vanjsko parkirno mjesto (12,50m2)

Svaki stan dolazi s integriranim pametnim sustavom upravljanja putem centralnog zidnog touch zaslona. Na jednostavan i intuitivan način moguće je kontrolirati:

- videointerfon za glavni ulaz
- rasvjetu svih prostorija
- električne rolete
- sustav hlađenja i klimatizacije
- sustav grijanja
Osim upravljanja na središnjem zaslonu, dostupna je i mobilna aplikacija koja omogućava daljinski pristup stanu kontrolu i praćenje funkcija u stvarnom vremenu, gdje god se nalazili.
Svako parkirno mjesto biti će opremljeno je wallbox punjačem za električna vozila (snage do 4 kW). Time vlasnici već pri useljenju dobivaju infrastrukturu spremnu za nadolazeće trendove održive mobilnosti.

Zajednički antenski sustav za zemaljske i satelitske TV programe te videonadzor kao zaštita objekta
Optička i bakrena infrastruktura za brzu i pouzdanu internetsku vezu

Uz visoki standard gradnje, vrhunsku izolaciju i pažljivo birane materijale, stan nudi sve preduvjete za luksuzan i funkcionalan život u mirnom okruženju s brzim pristupom svim sadržajima grada.

Za više informacija i termin razgledavanja, slobodno nas kontaktirajte.
Features
Type
Apartment
Contract
Sale
Floor
Ground floor
Lift
No
Surface
59 m²
Rooms
2
Bedrooms
1
Furnished
No
Heating
Central, gas powered
Air conditioning
Cold/hot
Price information
Price
€ 219,743
Price per m²
3,724 €/m²
Energy efficiency

Energy consumption

A+

Discover every corner of the property
+12
Additional options

Contact the advertiser

Or