3-room flat to be refurbished, ground floor, Ciglenica, Zagreb

€ 250,000
3
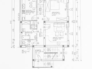
85 m²
2
G
No

Note

Listing updated on 03/13/2026
Description

reference: I33182

PRODAJA, STAN, ZAGREB, TREŠNJEVKA, ZAGORSKA ULICA, 85,02 m2, s vrtom i parkingom

Na prodaju je stan ukupne obračunske površine 85,02 m2. Stan se sastoji od stambenog prostora veličine 62,73 m2, dva pripadajuća spremišta u podrumu (15,33 m2 i 15,03 m2) te vrta površine 71 m2. Stan je opremljen klimom. Uz stan dolazi i parkirno mjesto pod nadstrešnicom.

Smješten u mirnom dijelu Zagorske ulice na Trešnjevci, ovaj stan pruža privatnost i poseban ugođaj života u gradu. Vrt ispunjen ružama i cvijećem savršen je kutak za opuštanje i uživanje na otvorenom, a dodatna spremišta nude praktičnost i funkcionalnost.

Ova nekretnina idealna je za sve koji traže udoban dom s osjećajem intime, a ujedno žele biti blizu svih važnih sadržaja.

Za dodatne informacije i razgledavanje kontaktirajte nas.
Features
Type
Apartment
Contract
Sale
Floor
Ground floor
Lift
No
Surface
85 m²
Rooms
3
Bedrooms
2
Bathrooms
2
Furnished
No
Garage, car parking
1 parking space
Heating
Central, gas powered
Air conditioning
Cold/hot
Price information
Price
€ 250,000
Price per m²
2,941 €/m²
Energy efficiency

Energy consumption

C

Discover every corner of the property
+14
Additional options

Contact the advertiser

Or