Building land for Sale

€ 110,000
1,750 m²

Note

Listing updated on 05/04/2026
Description

This description has been translated automatically and may not be accurate

reference: IS1519969

Building land Žminj, 1.750m2

A beautiful building plot with a valid building permit is located in a , peaceful residential area in the surroundings of Žminj, ideal for those seeking privacy, tranquility, and a high-quality living environment in the heart of Istria. The plot has a total surface area of 1,750 m, is completely flat and of a regular, almost square shape, making it perfect for the realization of a luxury project. All necessary infrastructure is located directly next to the land, enabling a fast and simple start of construction.

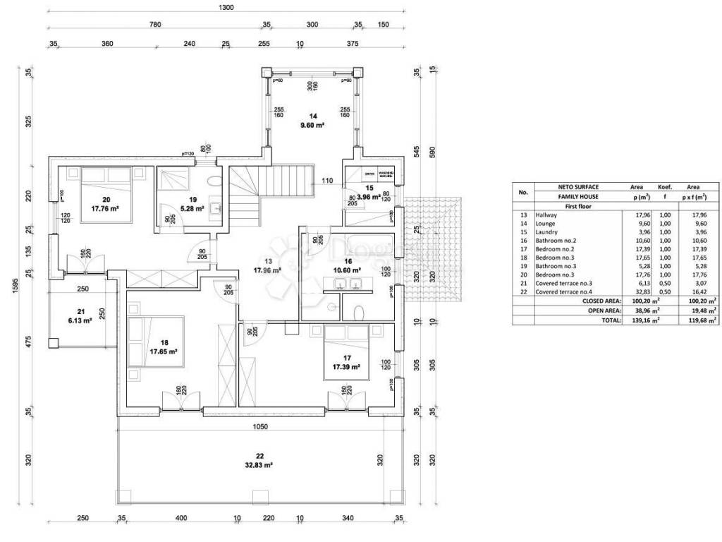
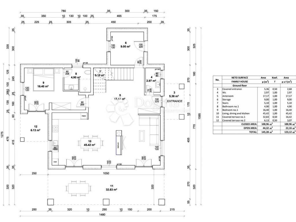
The project is designed as a luxury family house consisting of a basement, ground floor, and first floor. The ground floor is planned to include a spacious living room, kitchen, guest toilet, and one bedroom with a private bathroom. The first floor will feature three bedrooms, two bathrooms, and a laundry room. The layout has been designed with a strong focus on functionality, comfort, and privacy.

The overall concept offers a perfect balance between modern living, luxury, and the peaceful Istrian environment, making this property an exceptional opportunity both for private construction and as a high-quality investment.

ID CODE: IS1519969

Dogma Poreč
Mob: 091/361-1922
Tel: +385 52 771 458
E-mail: info@dogma-nekretnine.com
www.dogma-nekretnine.com
Features
Contract
Sale
Type
Building land
Surface
1,750 m²
Price information
Price
€ 110,000
Price per m²
63 €/m²
Discover every corner of the property
+9
Additional options

Contact the advertiser

Or