1/15


Building land for Sale
€ 130,000
Listing updated on 04/06/2026
Description
reference: Z11522
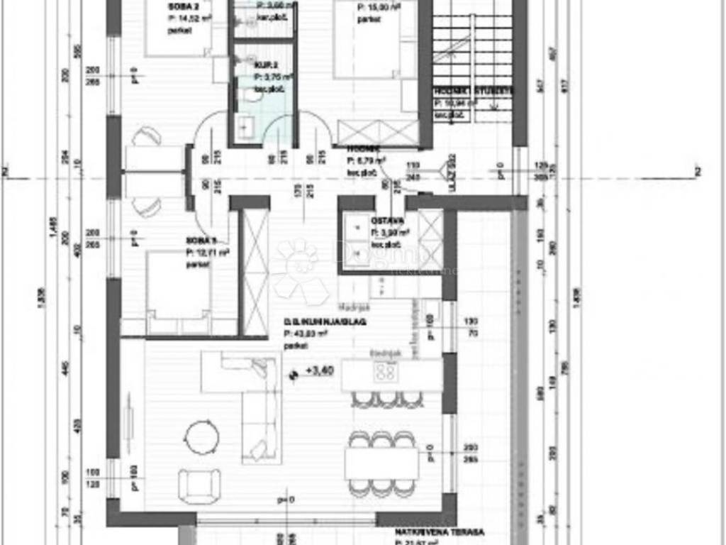
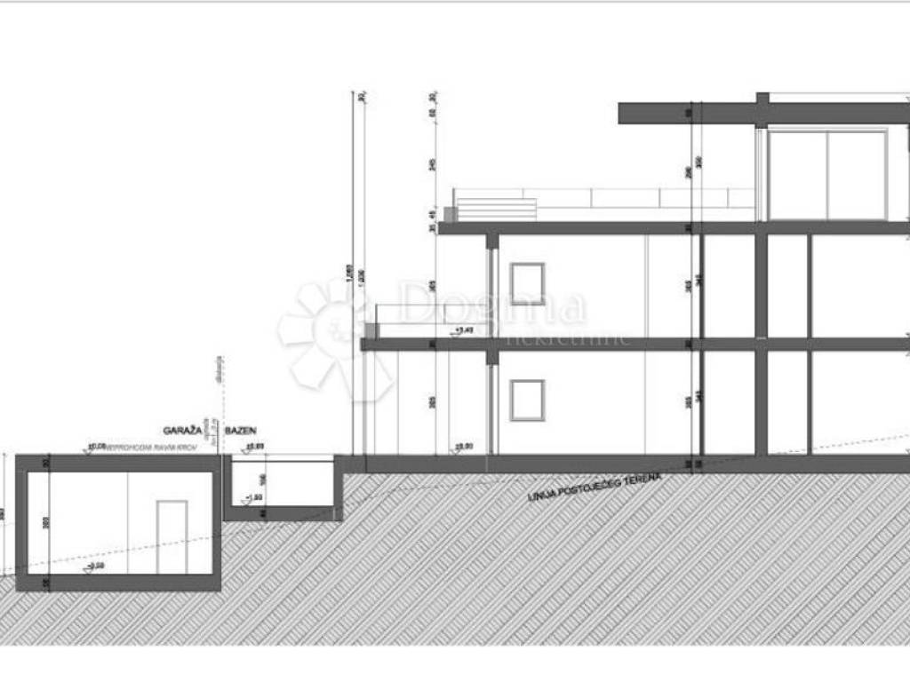
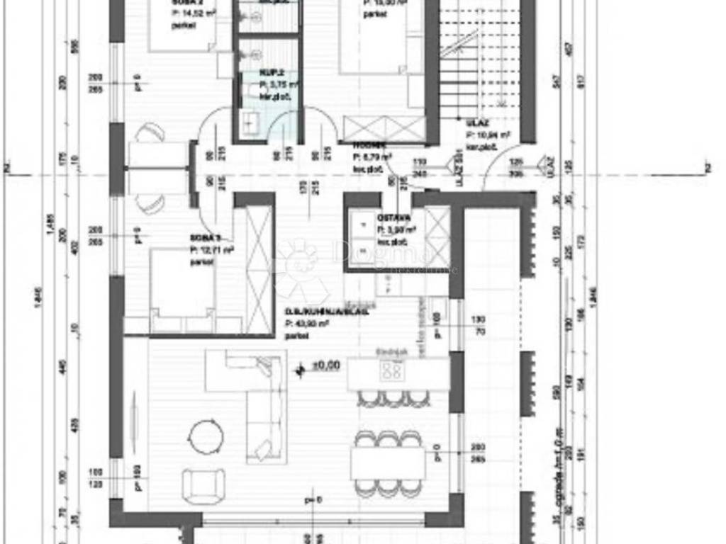
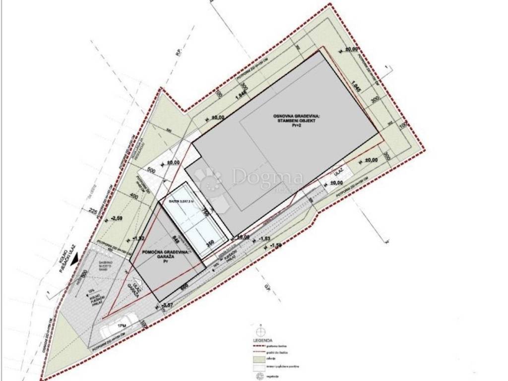
Building land Šmrika, Kraljevica, 640m2
ID CODE: Z11522
Sandra San
Agent s licencom
Mob: 092/322-2331
Tel: +385 51 341 080
E-mail: sandra.san@dogma-nekretnine.com
www.dogma-nekretnine.com
Features
- Contract
- Sale
- Type
- Building land
- Surface
- 640 m²
Price information
- Price
- € 130,000
- Price per m²
- 203 €/m²
Discover every corner of the property
Additional options