Single-family detached house 406 m², Bukovac - Remete, Zagreb

€ 650,000
5+
406 m²
3+
No

Note

Listing updated on 02/20/2026
Description

This description has been translated automatically and may not be accurate

reference: I34729

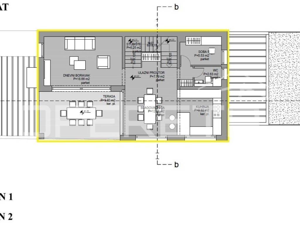
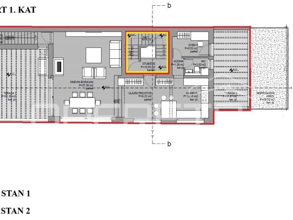
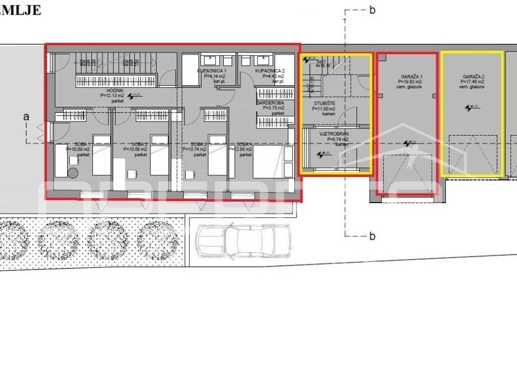
FOR SALE, HOUSE, NEWLY BUILT, ROH-BAU MAKSIMIR, BUKOVAC, 406 m, GARDEN 430 m, 2 GARAGES. Detached house in a quiet and attractive location on a 960m plot with 292m of closed living space, designed as two separate apartments, each with its own entrance. Apartment S1 with 155m2, two-storey, has 4 bedrooms, 2 bathrooms with toilets, wardrobe, entrance hall, hallway, staircase. The upper floor (1st floor) consists of an entrance hall, a spacious open space living room with kitchen and dining room which has access to a spacious 30m terrace, one bedroom and a toilet. Apartment S2, duplex on the 2nd floor, has 120m2: entrance hall, open space living room with kitchen and dining room which also has access to a spacious terrace, 1 bedroom and toilet, on the UPPER FLOOR (attic) there are 3 bedrooms, 2 bathrooms with toilet, and a wardrobe. The property can also be designed as one residential unit. On the ground floor there are 2 covered garage parking spaces and 1 outdoor parking space. Asphalt access to the house, gas on the road, garden, open view. This property is ideal for large families looking for a spacious and functional home in a quiet and attractive location. It is also a great opportunity for investors. With its layout, terraces and garden, it offers the perfect combination of comfort and privacy. WE RECOMMEND!
Features
Type
Single-family detached house
Contract
Sale
Floor
1
Lift
No
Surface
406 m² | commercial 1,365 m²
Rooms
5+
Bedrooms
9
Bathrooms
3+
Furnished
No
Air conditioning
Cold/hot
Surface detail

Residential

Floor
1
Surface
406.0 m²
Coefficient
100%
Surface type
Main
Commercial area
406.0 m²

Land

Floor
Ground floor
Surface
959.0 m²
Coefficient
100%
Surface type
Accessory
Commercial area
959.0 m²
Price information
Price
€ 650,000
Price per m²
476 €/m²
Energy efficiency
  • Year of construction

    2024
  • Air conditioner

    Cold/hot
  • Energy certification

    Exempt
Discover every corner of the property
+9
Additional options

Contact the advertiser

Or