4-room flat Dedići, Podsljeme, Šestine - Mlinovi, Zagreb

€ 627,000
4
162 m²
2
3
No
Terrace

Note

Listing updated on 02/23/2026
Description

This description has been translated automatically and may not be accurate

reference: 15763

Zagreb, Dedići, four-room penthouse in a modern new building, 162.88 m²

I present to you the exclusive project Novogradnja Dedići, a combination of top architecture, premium materials and modern technologies, located in one of the most prestigious areas under Medvednica. The project consists of 4 floors and a total of 5 luxury residential units, and every detail is built to the highest standards of quality and safety.

Construction quality and equipment:

This new building offers top execution and the most modern systems:

- reinforced concrete structure with high anti-earthquake standards
- underfloor heating throughout the apartment via heat pump
- smart home system for controlling lighting, blinds, heating and security functions
- ALU carpentry with triple-layer insulated glass
- electric blinds
- sanitary ware and equipment from first-class manufacturers
- exceptional energy efficiency – A rating

Carefully designed exterior and interior architecture, in cooperation with a professional design team, gives this building a dose of elegance and refinement visible in every corner.
This luxury penthouse truly makes a difference because the space is full of natural light, with open views of the nature below Medvednica and a view of Kulmer’s Palace, giving it special charm and prestige.

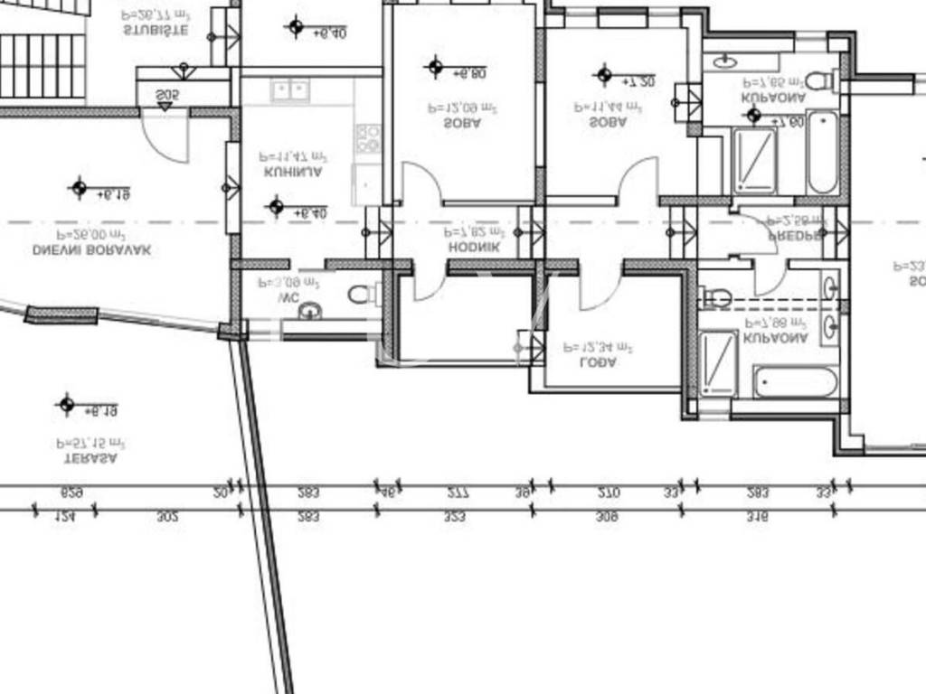
Layout and floor plan:

- entrance: 21.19 m²
- hallway: 9 m²
- bedroom 1: 12.09 m²
- bedroom 2: 11.20 m²
- master bedroom: 23.85 m²
- bathroom 1: 7.65 m²
- bathroom 2: 7.98 m²
- toilet: 3.09 m²
- living room + dining room: 26 m²
- kitchen: 17.20 m²
- loggia 1: 3.90 m² (calculated)
- loggia 2: 5.44 m² (calculated)
- terrace: 14.29 m² (calculated)

Total calculated area: 162.88 m²
With the apartment, it is mandatory to buy two garages
each €25,000
The apartment also includes a storage room, which further increases functionality.

This is one of the most sought-after locations in Zagreb, located near the British International School, a high school, an elementary school and a kindergarten. Nearby are parks and green areas, the Šestine Church, as well as various shops and cafés. It is important to emphasize that the city center is only 12 minutes by car from Britanac, which makes this location perfect for those who want the peace of nature but also the proximity of the city center.

For any additional questions and viewing of the property, we are at your disposal.

In case of an agency brokerage deal, there is an obligation to pay the agency commission.
Contact for this property: Vito, +385 91 622 7421

ID CODE: 15763

Vito Glavičić
Mob: +385 91 622 7421
E-mail: vito@luvarealestates.com
www.luvarealestates.com
Features
Type
Apartment
Contract
Sale
Floor
3 floor
Lift
No
Surface
162 m²
Rooms
4
Bedrooms
4
Bathrooms
2
Balcony
No
Terrace
Yes
Garage, car parking
1 in garage/box
Air conditioning
Independent, cold/hot
Price information
Price
€ 627,000
Price per m²
3,870 €/m²
Energy efficiency
  • Air conditioner

    Independent, cold/hot
  • Energy certification

    Not classifiable
Discover every corner of the property
+22
Additional options

Contact the advertiser

Or