4-room flat first floor, Luka, Poreč

€ 260,000
4
89 m²
2
1
Yes
Balcony
Terrace

Note

Listing updated on 03/02/2026
Description

This description has been translated automatically and may not be accurate

reference: IS1520237

Flat Poreč, 91,05m2

Modern New Build in Poreč First-Floor Apartment with Rooftop Terrace

Just a few minutes drive from the center of Poreč and the nearest beaches, this modern new development with a total of four residential units offers the perfect combination of a peaceful setting, high-quality construction, and contemporary design.

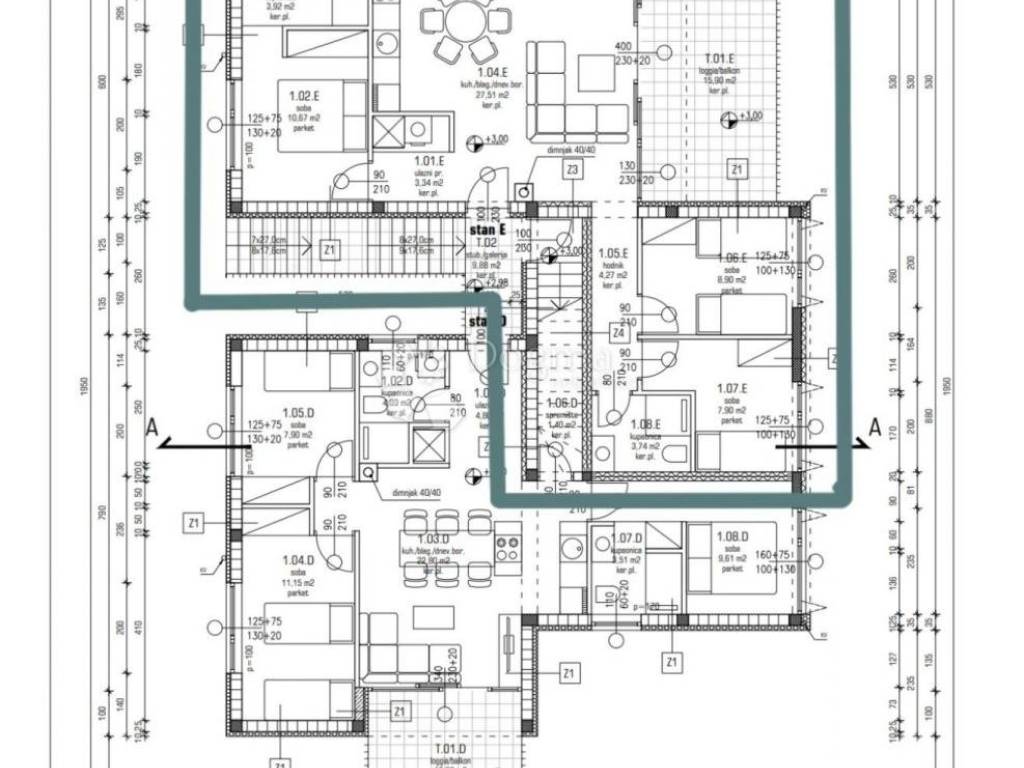
For sale is a first-floor apartment with a total net area of 89.80 m, featuring a carefully designed layout and a spacious rooftop terrace, ideal for relaxing and enjoying the outdoors.

The interior consists of a living room with kitchen and dining area (27.51 m), three bedrooms (10.67 m, 8.9 m, and 7.9 m), two bathrooms (3.74 m and 3.92 m), and a hallway (7.61 m). Additionally, the apartment includes a covered terrace (3.98 m), a rooftop terrace (15.58 m), and a parking space (1.25 m), all included in the total surface area.

The apartment will be equipped with a heat pump heating system and air conditioning units, ensuring optimal comfort and energy efficiency throughout the year.

Thanks to its excellent location, quiet neighborhood, and proximity to all amenities, this property is an ideal choice for family living or as an investment for tourist rental.

ID CODE: IS1520237

Karlo Šestan
Asistent u posredovanju
Mob: 091/361-1922
Tel: +385 52 771 458
E-mail: karlo.sestan@dogma-nekretnine.com
www.dogma-nekretnine.com
If you want to know more, you can talk to Karlo Šestan.
Features
Type
Apartment
Contract
Sale
Floor
1 floor
Lift
Yes
Surface
89 m²
Rooms
4
Bedrooms
3
Bathrooms
2
Balcony
Yes
Terrace
Yes
Price information
Price
€ 260,000
Price per m²
2,921 €/m²
Energy efficiency
  • Year of construction

    2025
  • Energy certification

    Exempt
Discover every corner of the property
+11
Additional options

Contact the advertiser

Or