2-room flat Ivanečka, Knežija - Srednjaci, Zagreb

€ 284,466
2
62 m²
1
Balcony

Note

Listing updated on 03/03/2026
Description

reference: EUROVILLA-667666

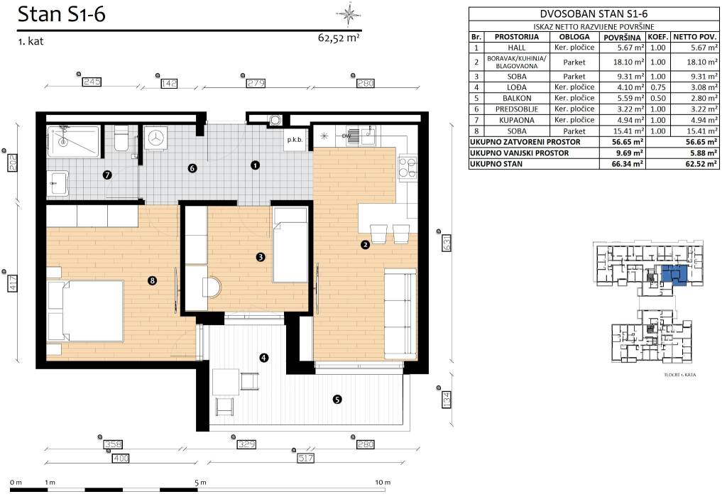
HERITAGE -Nova era stanovanja na TrešnjevciTrešnjevka, na atraktivnoj lokaciji gradi se HERITAGE, zgrada s ukupno 110 stanova. Savršen spoj udobnosti i luksuza dostupan svima. Planirano useljenje- veljača 2027.Stan S1-6trosoban stan na prvom katu zatvorene površine 56,65 m2 s balkonim 5,59 m2 (2,80 m2) i loggiom 4.10 (3.08 ) ukupno obračunski neto korisne površine 62.52 m2.Sastoji se od ulaznog hodnika, open space dnevnog boravka, blagovaonice i kuhinje, loggie, balkona, predsoblja, kupaonice i dvije spavaće sobe.Obvezna kupnja garažnog parkirnog mjesta te mogućnost kupnje spremišta.Zgrada će biti izgrađena po visokim standardima:sustav ETICS, završni sloj silikatna žbuka proizvođača ROFIXtoplinska izolacija 15 cm mineralna vuna Rockwoolaluminijske vanjske klupčice u boji stolarijevanjska stolarija PVC s trostrukim IZO staklomtoplinski izolirane aluminijske električne roletekomarnicidizalo KONE za 13 osoba,moderna i luksuzna kabinavideonadzor ulaza u zgradu i garažuunutarnja stolarija visina 220 cm, skriveni panti, magnetska bravaulazna vrata protuprovalna i protudimna, zvučno izoliranapodovi sanitarne prostorije, loggie i kuhinje obloženo keramičkim pločicama I klase, podovi svih ostalih prostorija obloženi sa gotovim višeslojnim hrastovim parketom proizvođača Moparsva sanitarna oprema je visoke kvalitete poznatih svjetskih proizvođača (HANSGROHE, LAUFEN, IDEAL STANDARD)ugradbeni TECE vodokotlićigrijanje i priprema potrošne tople vode preko Vaillant ili Bosch kondenzacijskog plinskog bojlerapodno grijanje svih prostorijatermostati podnog grijanja u svim prostorijamainverter klima uređaj Samsung i ToshibaLokacija u blizini škole, vrtića...Za sve dodatne informacije stojimo na raspolaganju.... Više na eurovilla.hr, ID: 667666
If you want to know more, you can talk to Antea Kodžoman.
Features
Type
Apartment
Contract
Sale
Floor
1
Surface
62 m²
Rooms
2
Bedrooms
2
Balcony
Yes
Surface detail

Residential

Floor
1
Surface
62.5 m²
Coefficient
100%
Surface type
Main
Commercial area
62.5 m²
Price information
Price
€ 284,466
Price per m²
4,588 €/m²
Energy efficiency
  • Condition

    New / Under construction
  • Energy certification

    Exempt
Floorplan
Discover every corner of the property
+39
Advertiser
agent male

Antea Kodžoman

agency card
Additional options

Contact the advertiser

Or
agent male

Antea Kodžoman