2-room flat new, third floor, Gornji Stenjevec, Zagreb

€ 292,333
2
62 m²
1
3
Yes
Terrace

Note

Listing updated on 04/18/2026
Description

reference: iro-4518

MOLIMO ZVATI: 098 18 38 174

NOVOGRADNJA!
KUPNJA DIREKTNO OD INVESTITORA!
BEZ PROVIZIJE ZA KUPCA!

Odlična mikro-lokacija!
Podsused, prodajemo stan u izgradnji na 3. katu u zgradi sa 3 kata. U zgradi ima ukupno 15 stanova, 11 VPM (vanjskih parkirnih mjesta i 10 GPM (garažnih parkirnih mjesta na -1 etaži)
Objekt se nalazi u centru Podsuseda u blizini svih sadržaja: pošta, banke, trgovine, restorani, tržnica, benzinska postaja.

Zgrada ima LIFT koji povezuje garažu na -1 etaži sa svim ostalim etažama.

Konstrukciju zgrade čini sustav armirano-betonskih zidova, stropnih ploča i temeljenja.
Visoka kvaliteta gradnje: Energetski certifikat A+.

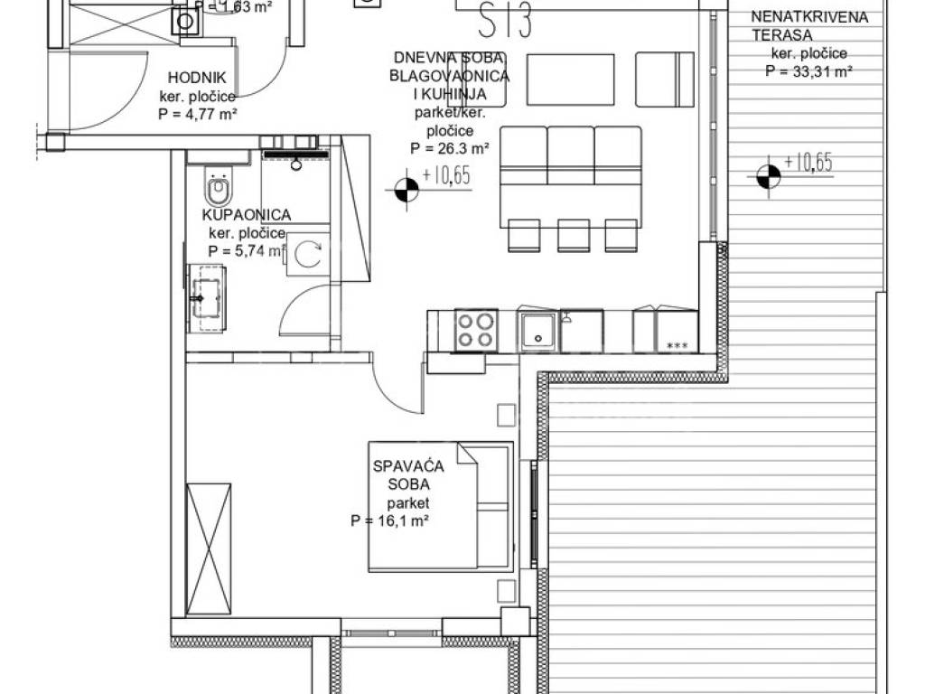
Stan S13 na 3. katu sadrži:

- ul. hodnik
- dnevni boravak + kuhinja + blagovaona
- spavaća soba
- kupaonica sa WC-om
- dodatni mali WC
- terasa (33,31 m2)




ukupno stan S13 neto obračunski = 62,87 m2

CIJENA: 4.650 €/m2
CIJENA STANA: 292.333 €



PARKIRNA MJESTA (nadoplata na cijenu stana):

VPM (vanjska parkirna mjesta): 12.5m2 x 1.200€/m2 = 15.000€ (FIKSNO)

GPM (garažna parkirna mjesta na etaži -1)
od 12,50m2 do 16.75m2 po cijeni 2.236€/m2

OBAVEZNA JE KUPNJA VPM ili GPM



Grijanje stana:
- plinsko centralno etažno / radijatori
- klima uređaj


Hlađenje stana:
- klima uređaj

Dokumentacija:
- vlasnički list
- građevinska dozvola

Za više informacija:
mob: 098 18 38 174
mail: info@kvadar-nekretnine.hr
www.kvadar-nekretnine.hr
If you want to know more, you can talk to Vedran Anić.
Features
Type
Apartment | Medium property class
Contract
Sale
Floor
3 floor
Building floors
3
Lift
Yes
Surface
62 m²
Rooms
2
Bedrooms
2
Bathrooms
1
Balcony
No
Terrace
Yes
Heating
Central, with radiators
Air conditioning
Independent
Price information
Price
€ 292,333
Price per m²
4,715 €/m²
Energy efficiency

Energy consumption

A+

Discover every corner of the property
+5
Additional options

Contact the advertiser

Or