map icon

Apartment to be refurbished, ground floor, Šestine - Mlinovi, Zagreb

ZagrebŠestine - Mlinovi
€ 577,307
5
176 m²
3
G
Furnished

Note

Listing updated on 12/05/2025
Description

This description has been translated automatically and may not be accurate

reference: 14910-1

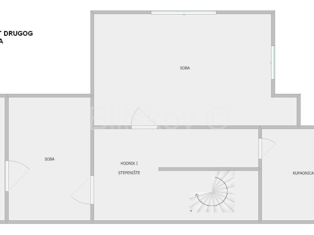
www.biliskov.com ID: 14910ŠestineA beautiful five-room apartment located in a semi-detached house, with a total gross area of 210 m, built in 1990.The apartment has an area of 175.98 m and is spread over four levels; there is no elevator.

Ground floor: Garage for two cars (33.95 m), utility room, WC, and wardrobe
First floor: Small kitchen, open-plan dining room and living room. This floor is surrounded by a tiled terrace and garden
Second floor: Two bedrooms, bathroom with toilet, and terrace
Attic: Two bedrooms and a bathroom with toilet

The apartment offers a beautiful panoramic view. Since the house has been unoccupied for years and unheated, certain areas on the ground floor and part of the first floor require renovation.
The apartment is part of a semi-detached house, with the option to purchase the other apartment with a garage, of a similar size (200.75 m).
Energy certificate: In progressOrientation: East-West-SouthHeating: Gas central heating, air conditioningPrice: 557,307Agency fee: 2% + VAT on the agreed sale price
If you want to know more, you can talk to Vedran Petrović.
Features
Type
Apartment
Contract
Sale
Floor
Ground floor
Surface
176 m²
Rooms
5
Bathrooms
3
Furnished
Yes
Heating
Central
Air conditioning
Central, cold/hot
Other features
  • Closet
  • Fireplace
  • Utility/Storage room
Price information
Price
€ 577,307
Price per m²
3,280 €/m²
Energy efficiency
  • Year of construction

    1990
  • Condition

    To be refurbished
  • Heating

    Central
  • Air conditioner

    Central, cold/hot
Discover every corner of the property
+18
Additional options

Contact the advertiser

Or