3-room flat new, first floor, Šibenik

€ 199,000
3
62 m²
1
1
Yes
Balcony

Note

Listing updated on 03/06/2026
Description

This description has been translated automatically and may not be accurate

reference: DA100065456

EXCELLENT OPPORTUNITY NEWLY BUILT LUXURY APARTMENT 200 m FROM THE SEA GREBAŠTICA

EXCELLENT OPPORTUNITY NEWLY BUILT LUXURY APARTMENT 200 m FROM THE SEA GREBAŠTICA
Prime location, sea view, high-end finishes, parking space included, move-in expected in 2025.

Located in a quiet and attractive part of Grebaštica, just 200 meters from the crystal-clear sea and beach, this luxury apartment is part of a modern new development. An ideal choice for peaceful family living, a relaxing vacation retreat, or a secure investment in tourist rental.
The apartments orientation to the east, west, and north provides morning sunlight, afternoon tranquility, and pleasant ventilation ideal for all-day living.

The project is in the final stages of construction, with completion expected by the end of 2025.
Ownership is clean (1/1), all documentation is in order, and staged payments are possible by agreement.

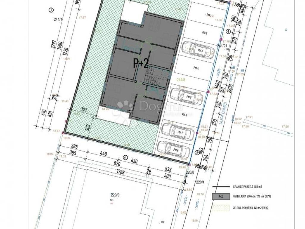
APARTMENT 1 62.94 m | PRICE: 199,000 (negotiable)
The apartment features two bedrooms (8.8 m and 12.41 m), a spacious living room with kitchen and dining area (23.90 m), hallway, modern bathroom, and a balcony (8.92 m).
The price includes a private outdoor parking space.
Ground floor apartments also have access to a private garden.

PREMIUM EQUIPMENT & MATERIALS
Air conditioning units with WiFi modules in all rooms
Electric underfloor heating in the bathroom
PVC windows with ClimaGuard glazing
Built-in Geberit toilet tanks
Hansgrohe shower systems
Villeroy & Boch sanitary ware
ETICS façade system with 10 cm thermal insulation
Flat roof with 15 cm insulation, covered with batuda stone
Balconies with glass railings for unobstructed views

WHY CHOOSE THIS PROPERTY
Excellent micro-location beach and sea just a few minutes walk away
All daily amenities nearby shops, restaurants, cafés, town center
Peaceful surroundings ideal for relaxation or year-round living
Superior build quality and high-end finishes no further investment needed
A secure investment with high potential and value

For more information or to arrange a viewing, feel free to contact us properties of this quality are rarely on the market for long.

ID CODE: DA100065456

Nina Mrvica
Asistent u posredovanju
Mob: 091/157-1280
Tel: 022/646-360, 022/646-361
E-mail: nina.mrvica@dogma-nekretnine.com
www.dogma-dalmacija.com
If you want to know more, you can talk to Nina Mrvica.
Features
Type
Apartment
Contract
Sale
Floor
1 floor
Lift
Yes
Surface
62 m²
Rooms
3
Bedrooms
2
Bathrooms
1
Balcony
Yes
Terrace
No
Price information
Price
€ 199,000
Price per m²
3,210 €/m²
Energy efficiency
  • Year of construction

    2025
  • Condition

    New / Under construction
  • Energy certification

    Exempt
Discover every corner of the property
+10
Additional options

Contact the advertiser

Or