4-room flat ground floor, Tar-Vabriga

€ 554,000
4
125 m²
3
1
Yes
Balcony
Terrace

Note

Listing updated on 04/08/2026
Description

This description has been translated automatically and may not be accurate

reference: IS1517481

Flat Tar, Tar-Vabriga, 158m2

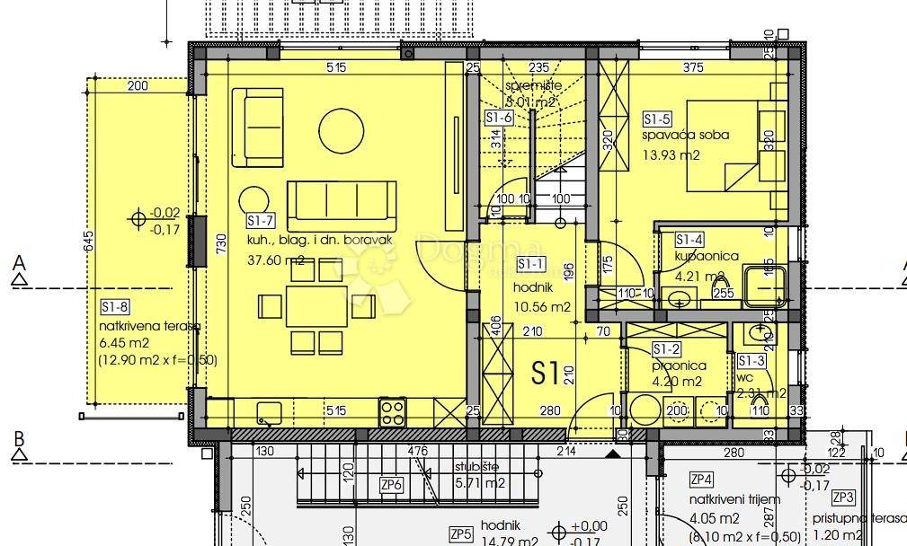
Located in an attractive setting near Poreč, the sea, and everyday amenities, this modern two-storey apartment offers 125m of living space. It combines elegant architecture, a functional layout, and a luxurious ambianceperfect for family living, holiday retreats, or investment.

The apartment is spread over the ground floor and first floor. On the ground floor, a spacious open-plan living area features a kitchen, dining room, and living room, with direct access to the landscaped terrace and pool. Large glass walls provide abundant natural light and a seamless connection to the outdoor area. The same level includes one bedroom with an en-suite bathroom, a guest toilet, and a practical storage/laundry room.

Upstairs, there are two additional bedrooms, each with an en-suite bathroom and access to a covered terrace offering stunning views of the sea and surrounding greenery. The apartment is sold unfurnished but includes builtin sanitary equipment and highquality glazing and joinery.

The garden area includes a private 17.5m swimming pool, a spacious sun deck, a covered outdoor dining area, and landscaped greenery. The unit also comes with an external parking space and a storage room in the basement.

Indoor comfort is ensured by air-conditioning and electric underfloor heating in the living room and bathrooms. Large windows feature electric rolling shutters.

This unique property offers the perfect blend of modern construction, functional design, and a prime locationideal for those seeking a Mediterranean lifestyle.

The buyer is exempt from paying real estate transfer tax.

ID CODE: IS1517481

Lorena Kogej
Agent s licencom
Mob: 091/738-7200
Tel: 052/639-276
E-mail: lorena.kogej@dogma-nekretnine.com
www.dogma-nekretnine.com

Karlo Šestan
Asistent u posredovanju
Mob: 091/361-1922
Tel: +385 52 771 458
E-mail: karlo.sestan@dogma-nekretnine.com
www.dogma-nekretnine.com
If you want to know more, you can talk to Lorena Kogej.
Features
Type
Apartment
Contract
Sale
Floor
1
Lift
Yes
Surface
125 m² | commercial 225 m²
Rooms
4
Bedrooms
3
Bathrooms
3
Balcony
Yes
Terrace
Yes
Surface detail

Residential

Floor
1
Surface
125.0 m²
Coefficient
100%
Surface type
Main
Commercial area
125.0 m²

Land

Floor
Ground floor
Surface
100.0 m²
Coefficient
100%
Surface type
Accessory
Commercial area
100.0 m²
Price information
Price
€ 554,000
Price per m²
2,462 €/m²
Energy efficiency
  • Year of construction

    2024
  • Energy certification

    Exempt
Discover every corner of the property
+20
Additional options

Contact the advertiser

Or