map icon

Single-family detached house 170 m², Funtana

Funtana
€ 540,500
5+
170 m²
3
Yes
Balcony
Terrace

Note

Listing updated on 11/18/2025
Description

This description has been translated automatically and may not be accurate

reference: IS1516950

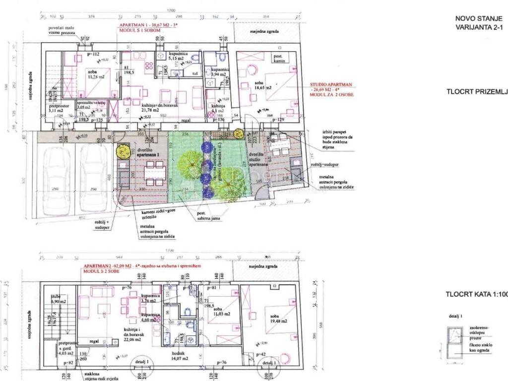
New house in Funtana with 3 apartments

We offer a completely renovated house with a net area of 170 m, with a yard of 88 m and three parking spaces. The property has been completely renovated: electricity, water, lighting, sanitary ware, ceramics, facade, fence, tiling and carpentry. The house consists of three apartments two on the ground floor and one on the first floor, each with a functionally equipped bathroom. Apartment 1 38.67 m2 (ground floor): living room with kitchen, equipped bathroom, bedroom, yard with barbecue, parking space Apartment 2 26.69 m2 (ground floor): bedroom, kitchen, bathroom, yard with barbecue, parking space Apartment 3 92.09 m2 (1st floor): living room with kitchen, equipped bathroom, 2 bedrooms, balcony, parking space Contact for information and viewing: Luka Brgić 098 902 8832 Eleonora Dobrović 099 296 9844

ID CODE: IS1516950

Eleonora Dobrović
Agent s licencom
Mob: 099/296-9844
Tel: 052 645 444
E-mail: eleonora.dobrovic@dogma-nekretnine.com
www.dogma-istra.com

LUKA BRGIĆ
Asistent u posredovanju
Mob: 098/902-8832
Tel: 052 645 444
E-mail: luka.brgic@dogma-nekretnine.com
www.dogma-istra.com
If you want to know more, you can talk to Eleonora Dobrović.
Features
Type
Single-family detached house
Contract
Sale
Floor
1
Lift
Yes
Surface
170 m² | commercial 258 m²
Rooms
5+
Bedrooms
4
Bathrooms
3
Balcony
Yes
Terrace
Yes
Surface detail

Residential

Floor
1
Surface
170.0 m²
Coefficient
100%
Surface type
Main
Commercial area
170.0 m²

Land

Floor
Ground floor
Surface
88.0 m²
Coefficient
100%
Surface type
Accessory
Commercial area
88.0 m²
Price information
Price
€ 540,500
Price per m²
2,095 €/m²
Energy efficiency
  • Energy certification

    Exempt
Discover every corner of the property
+12
Advertiser
agent male

Eleonora Dobrović

agency card
Additional options

Contact the advertiser

Or
agent male

Eleonora Dobrović