map icon

3-room flat new, ground floor, Sveti Filip i Jakov

Sveti Filip i Jakov
€ 243,000
3
75 m²
1
G
Yes
Terrace

Note

Listing updated on 11/18/2025
Description

This description has been translated automatically and may not be accurate

reference: DA100064179

SV. PETAR NA MORU - S1 GROUND FLOOR WITH GARDEN, SEA VIEW

For all additional information and to schedule a viewing, please contact me at: +385919077396 or via email at vedrana.basic@dogma-nekretnine.com

***SV. PETAR NA MORU - S1 GROUND FLOOR WITH GARDEN, SEA VIEW****

The building consists of nine residential units and is located just 250 meters from the sea and the beach.

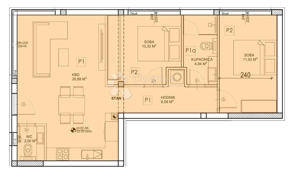
Apartment S1 is situated on the ground floor of the building and consists of:

HALLWAY 6.06 m
BATHROOM 4.84 m
BEDROOM 10.32 m
LIVING ROOM WITH KITCHEN 26.88 m
BEDROOM 11.93 m
TOILET 2.00 m
COVERED TERRACE 6.79 m
UNCOVERED TERRACE 8.61 m
GARDEN 58.44 m
PARKING SPACE 12.50 m

The indoor living space covers 62 m, and the apartment includes a garden of 58.44 m and one parking space. The total net saleable area is 75.92 m.

The building is being constructed according to all modern construction standards. Notable features include:

ELEVATOR
PVC joinery with triple-glazed windows and electric aluminum shutters, mosquito nets
10 cm styrofoam insulation
Electric underfloor heating in the bathroom
Heating and cooling via air conditioning in every room
Intercom system
Flooring: parquet in all rooms except bathrooms and toilets, where tiles will be installed
The rooftop terrace will have electrical and water connections

Expected completion by the end of 2026.

Financing available for EU citizens.
The number one real estate agency in Croatia for 25 years.

VEDRANA BAŠIĆ
+385919077396
vedrana.basic@dogma-nekretnine.com

ID CODE: DA100064179

Vedrana Bašić
Asistent u posredovanju
Mob: 091/907-7396
Tel: 023/551-400
E-mail: vedrana.basic@dogma-nekretnine.com
www.dogma-nekretnine.com
If you want to know more, you can talk to Vedrana Bašić .
Features
Type
Apartment
Contract
Sale
Floor
Ground floor
Lift
Yes
Surface
75 m²
Rooms
3
Bedrooms
2
Bathrooms
1
Balcony
No
Terrace
Yes
Air conditioning
Independent, cold/hot
Price information
Price
€ 243,000
Price per m²
3,240 €/m²
Energy efficiency
  • Condition

    New / Under construction
  • Air conditioner

    Independent, cold/hot
  • Energy certification

    Exempt
Discover every corner of the property
+9
Advertiser
agency card
Additional options

Contact the advertiser

Or