1/7


Single-family detached house 166 m², Ližnjan
Ližnjan€ 620,000
Listing updated on 11/18/2025
Description
reference: IS1515508
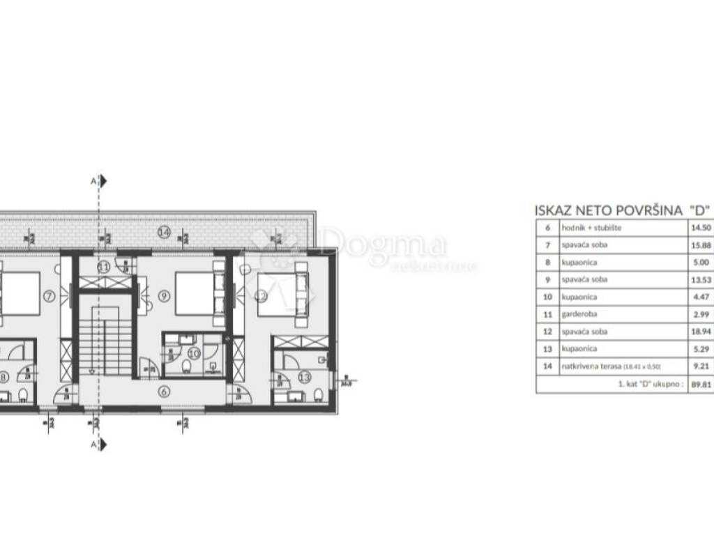
House Valtura, Ližnjan, 166,77m2
ID CODE: IS1515508
Filip Crnjac
Agent s licencom
Mob: 091/600-1216
Tel: 052 645 444
E-mail: filip.crnjac@dogma-nekretnine.com
www.dogma-istra.com
Gabrijela Lovrinović
Agent s licencom
Mob: 097/761-7229
Tel: 052 770 811
E-mail: gabrijela.lovrinovic@dogma-nekretnine.com
www.dogma-istra.com
Features
- Type
- Single-family detached house
- Contract
- Sale
- Surface
- 166 m²
- Rooms
- 5
- Bedrooms
- 3
- Bathrooms
- 3+
- Balcony
- No
- Terrace
- Yes
Price information
- Price
- € 620,000
- Price per m²
- 3,735 €/m²
Energy efficiency
Year of construction
2026Energy certification
Exempt
Discover every corner of the property
Additional options