1/7


4-room flat new, second floor, Privlaka
€ 450,000
4
179 m²
2
2
Yes
Balcony
Terrace
Listing updated on 11/19/2025
Description
reference: DA1000587
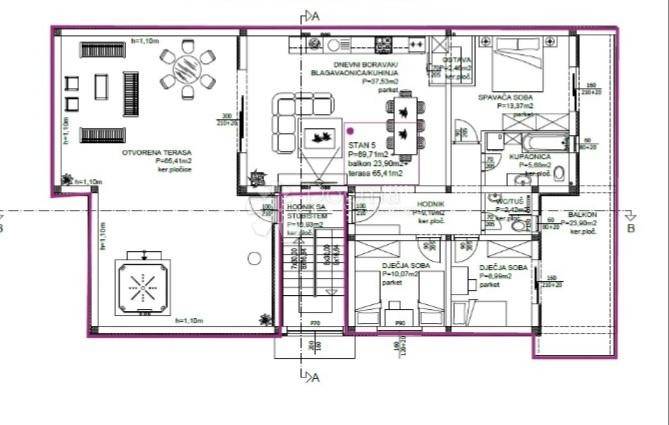
Flat Privlaka, 179,02m2
ID CODE: DA1000587
Danijela Stojčinović
Asistent u posredovanju
Mob: 098/920-6268
Tel: +385 21 293 201
E-mail: danijela.stojcinovic@dogma-nekretnine.com
www.dogma-dalmacija.com
Features
- Type
- Apartment
- Contract
- Sale
- Floor
- 2 floor
- Lift
- Yes
- Surface
- 179 m²
- Rooms
- 4
- Bedrooms
- 3
- Bathrooms
- 2
- Balcony
- Yes
- Terrace
- Yes
Price information
- Price
- € 450,000
- Price per m²
- 2,514 €/m²
Energy efficiency
Year of construction
2024Condition
New / Under constructionEnergy certification
Exempt
Discover every corner of the property
Additional options