Building land for Sale

€ 299,000
650 m²

Note

Listing updated on 12/04/2025
Description

This description has been translated automatically and may not be accurate

reference: Z10445

Land Ičići, Opatija - Okolica, 650m2

BUILDING LAND WITH PERMIT FOR EXCLUSIVE VILLA WITH SWIMMING POOL

This is an opportunity you should not miss!!
A building plot of 650 m2 in Ičići allows you to build an exclusive villa with a beautiful panoramic view of the entire Kvarner.

The terrain is sloped in a cascade, which allows for a flawless panoramic view of Kvarner.
It is the perfect basis for building a luxury villa that will meet the highest standards.

The process of issuing a building permit for the construction of a 325 m2 villa with a swimming pool is underway.
This is a great opportunity for those who want to live in a dream villa with a private pool and a beautiful sea view!

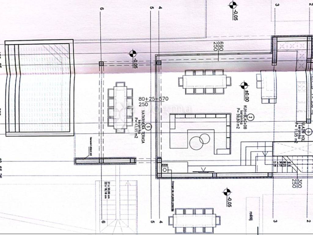
Layout of the space according to the project:

Basement: corridor, fitness area, room, bathroom, wellness area, technical room, terrace.
Ground floor: hall, kitchen, living room, dining room, wardrobe, toilet and access to the covered terrace, swimming pool and sunbathing area.
Floor: three spacious rooms, each with its own bathroom, and a large terrace.

This building plot is located only 900 m from the sea and the center of Ičić, and all the necessary infrastructure is available right up to the field itself. This gives you the perfect place to build your luxury villa, where you will enjoy peace and proximity to all facilities.

If you have been dreaming of your own luxury villa with a pool and a view of the sea, this building plot offers you the opportunity to make your dreams come true.

Contact us today to learn more about this exceptional building site and project and to prepare for the construction of your luxury villa in Kvarner.

BARBARA POPOVIC
Licensed agent
+385919259816
barbara.popovic@dogma-nekretnine.com

NIKA TOMAIĆ
Licensed agent
+385981919398
nika.tomaic@dogma-nekretnine.com

ID CODE: Z10445

Blanka Frajman
Agent s licencom
Mob: 098/949-1535
Tel: +385 51 341 080
E-mail: blanka.frajman@dogma-nekretnine.com
www.dogma-nekretnine.com

Marta Mikuličić
Asistent u posredovanju
Mob: 098/755-888
Tel: +385 51 341 080
E-mail: marta.mikulicic@dogma-nekretnine.com
www.dogma-nekretnine.com
If you want to know more, you can talk to Blanka Frajman.
Features
Contract
Sale
Type
Building land
Surface
650 m²
Price information
Price
€ 299,000
Price per m²
460 €/m²
Discover every corner of the property
+4
Additional options

Contact the advertiser

Or