3-room flat first floor, Centar, Loborika, Marčana

€ 271,000
3
87 m²
1
1
Terrace

Note

Listing updated on 11/19/2025
Description

This description has been translated automatically and may not be accurate

reference: IS1508511

Apartment Duga Uvala, Marčana, 87m2

Duga Uvala is a tourist village 3 km southeast of Krnica in the municipality of Marčana. It is widely known for its beautiful beaches and crystal clear sea, which attracts a large number of foreign and domestic guests.

A spacious apartment with a unique open view of Cres and the sea is for sale right in this beautiful bay.

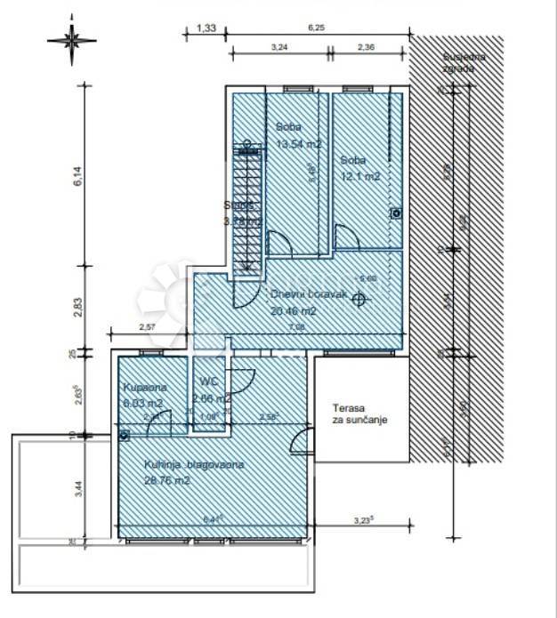
It is located on the first floor and consists of two bedrooms, living room, kitchen and dining room, bathroom, toilet and terrace. The terrace can also serve as a sunbathing area or a place to relax where you can enjoy the sunset with a view of the sea.

The apartment is currently under renovation and has its own parking space.

If you are looking for your summer residence and want to enjoy a spectacular view of the sea, feel free to contact us for more details:

MARGARETA UKOTIĆ
Licensed agent

+385 98 160 3826
+385 98 725 006
margareta.ukotic@dogma-nekretnine.com

ID CODE: IS1508511

Margareta Ukotić
Agent s licencom
Mob: 098/725-006, 098/160-3826
Tel: 052 645 444
E-mail: margareta.ukotic@dogma-nekretnine.com
www.dogma-istra.com
If you want to know more, you can talk to Margareta Ukotić.
Features
Type
Apartment
Contract
Sale
Floor
1 floor
Surface
87 m²
Rooms
3
Bedrooms
2
Bathrooms
1
Balcony
No
Terrace
Yes
Price information
Price
€ 271,000
Price per m²
3,115 €/m²
Energy efficiency
  • Year of construction

    2010
  • Energy certification

    Exempt
Discover every corner of the property
+8
Advertiser
agency card
Additional options

Contact the advertiser

Or