map icon

Apartment new, Gračani, Zagreb

ZagrebGračani
€ 677,000
5+
132 m²
2
Terrace

Note

Listing updated on 12/10/2025
Description

reference: 6403-1

Tel.: 095/564 7500 (Tomislav)
agent5@bestcroatianproperties.com
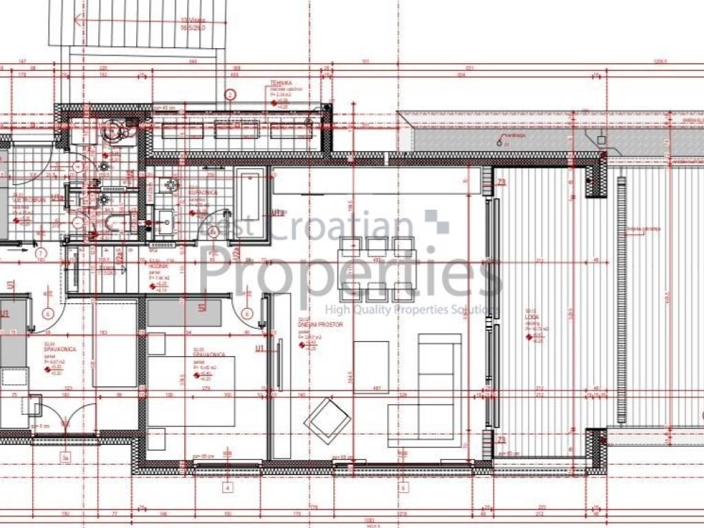
Prodaje se atraktivan četverosoban penthaus u luksuznoj novogradnji na atraktivnoj lokaciji (Podsljeme) u Gračanima odmah pokraj žičare.
Sami stan ima zatvorene površine 97,23m2 plus loggia od 16,73m2, terasa od 37,88m2 te zelenog krova od 10,37m2.
Uz stan su u cijenu uključeni i garažno parkirno mjesto i spremište.
Ukupna kvadratura sa koeficijentima iznosi 136m2.
Stan se nalazi u prizemlju zgrade u izgradnji koja ima ukupno dva kata i tri stana.
Stan se nalazi u armirano betonskoj zgradi najviših standarda sa fasadno toplinskom izolacijom, vanjskom ALU troslojnom stolarijom sa low-e premazom, visoko kvalitetnom keramikom, sanitarijama i parketom, pregradbeni zidovi od cigle i duplog knaufa.
Dizalice topline, podno grijanje, klime, elektične rolete.
Luksuzni sanitarni uređaji (Globo, Villeroy & Boch, Zucchetti, Hansgrohe) te parketi i keramike 1.klase (Mirage/Cote dEste pločice)
Vrhunska mikrolokacija idealna za obitelj. Stan je na atraktivnoj lokacijite okružen svih životno važnih sadržaja.
Sastoji se od ulaznoghodnika (4.15m2), dodatnog hodnika (predsoblje) od 7,49m2,openspacednevnog boravka i kuhinje (33.07m2), ostave (2.55m2), tri spavaće sobe (14,52m2, 10,45m2, 9,87m2), garderobe u master sobi od 4,52m2 te master kupaonice od 4,12m2, dodatne kupaonice (4,75m2), gostinjskog wc-a (1,74m2) loggie od 16,73 m2, velike terase od 37,88m2 te zelenog krova od 10,37m2.
Stan ima pripadajuće garažno parkirno mjesto uključeno u cijenu.
Stan ima pripadajuće spremište uključeno u cijenu.
Energetski certifikat A+.
TAKOĐER U PRODAJI I PRIZEMLJE.
Planirani završetak 04.mjesec 2026.
KUPAC NE PLAĆA AGENCIJSKU PROVIZIJU!
If you want to know more, you can talk to Tomislav Baždarić.
Features
Type
Apartment
Contract
Sale
Surface
132 m²
Rooms
5+
Bedrooms
3
Bathrooms
2
Terrace
Yes
Air conditioning
Central, cold/hot
Other features
  • Security door
Price information
Price
€ 677,000
Price per m²
5,129 €/m²
Energy efficiency
  • Year of construction

    2025
  • Condition

    New / Under construction
  • Air conditioner

    Central, cold/hot
  • Energy certification

    Not classifiable
Discover every corner of the property
+17
Additional options

Contact the advertiser

Or