Casa unifamiliar 132 m², nueva, Malinska

€ 520.000
3
132 m²
3
No
Balcón
Terraza

Nota

Anuncio actualizado el 11/12/2025
Descripción

This description has been translated automatically and may not be accurate

referencia: ID-1802

Malinska, isla de Krk, nueva casa moderna adosada, piscina, vista, parcela, venta

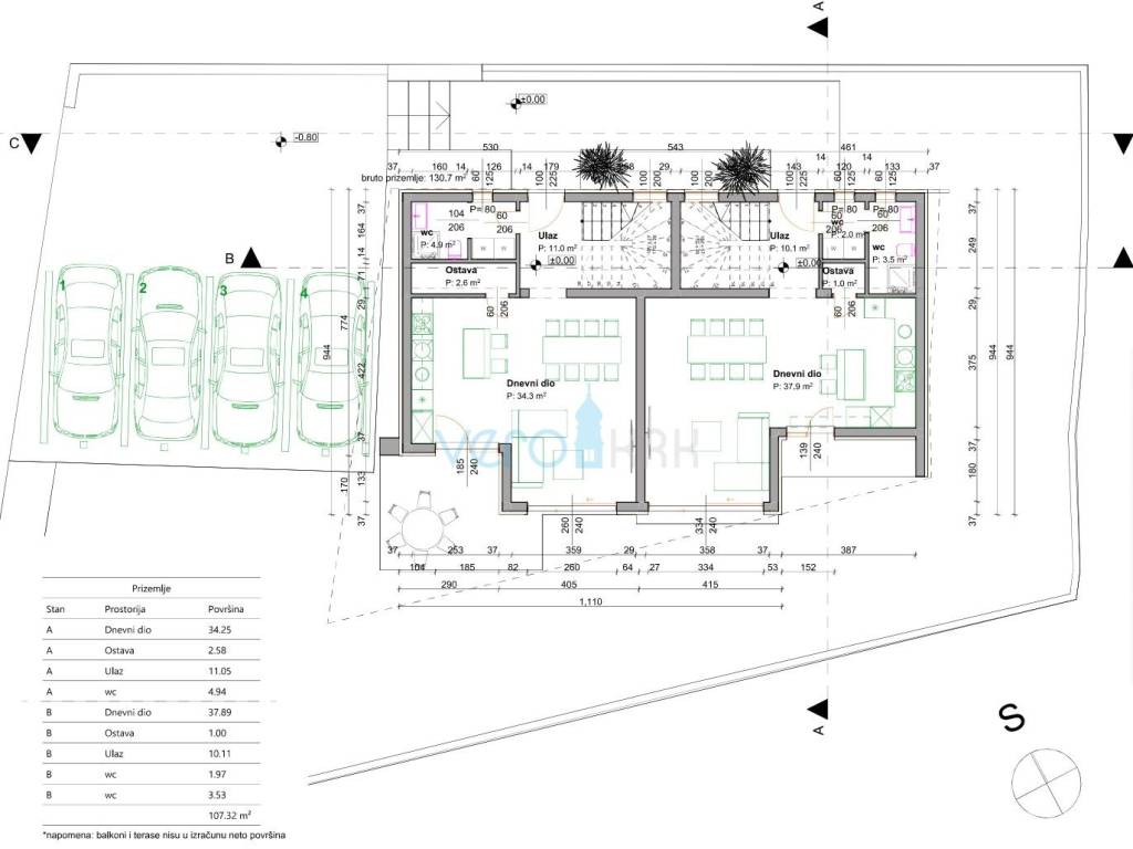
Malinska, isla de Krk, centro, se ofrece una atractiva casa pareada de diseño moderno. La ubicación a 600 m del mar y la playa es una ventaja especial, ya que es una zona residencial tranquila y de fácil acceso desde el centro. La casa, con una superficie total de 132,73 m2, está distribuida en planta baja y primer piso. En la planta baja hay un espacio abierto ("open space") con sala de estar, cocina, comedor, despensa y baño. Frente a este espacio hay una terraza cubierta. En el primer piso hay tres dormitorios, uno de ellos con baño privado, mientras que los otros dos comparten un segundo baño. La salida del dormitorio principal ("master") es a una terraza cubierta de 7,40 m2 con vista al mar. En el jardín acondicionado de 157 m2 hay una piscina de 30 m2 con solárium y cuarto de máquinas. La construcción se llevará a cabo durante los años 2025/2026, y se prevén materiales y equipamiento de calidad (aire acondicionado multisplit, calefacción por suelo radiante en baños, pasillo y planta baja, parquet en los dormitorios, cerámica italiana, carpintería de PVC, persianas eléctricas, puertas antirrobo, mosquiteras, aislamiento de 10 cm y preparación para paneles solares en el techo, alarma y videovigilancia). En el jardín acondicionado hay estacionamiento y espacio de maniobra para dos automóviles (25 m2). En una de las plazas de aparcamiento habrá preparación para estación de carga de vehículo eléctrico.

Excelente oportunidad para invertir en un hogar completamente nuevo junto al mar.

Bienvenidos a la visita.
Si deseas más información puedes hablar con Roman Doles.
Características
Tipología
Casa unifamiliar | Tipo de inmueble medio
Contrato
Venta
Ascensor
No
Superficie
132 m²
Habitaciones
3
Dormitorios
3
Baños
3
Balcón
Terraza
Calefacción
Individual, por radiadores, alimentación eléctrica
Aire acondicionado
Individual
Distancia al mar
600 m
Otras características
  • Jardín privado y comunitario
  • Puerta blindada
  • Piscina
Información del precio
Precio
€ 520.000
Precio del m²
3.939 €/m²
Eficiencia energética
  • Año de construcción

    2025
  • Estado

    Nuevo / En construcción
  • Calefacción

    Individual, por radiadores, alimentación eléctrica
  • Aire acondicionado

    Individual
Descubre otros ángulos del inmueble
+2
Opciones adicionales

Contactar con el anunciante

O