map icon

Piso 122 m², Rovinj

Rovinj
€ 680.000
122 m²
2

Nota

Anuncio actualizado el 22/12/2025
Descripción

This description has been translated automatically and may not be accurate

referencia: 3085


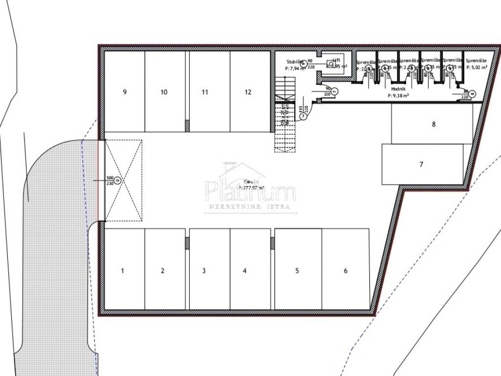
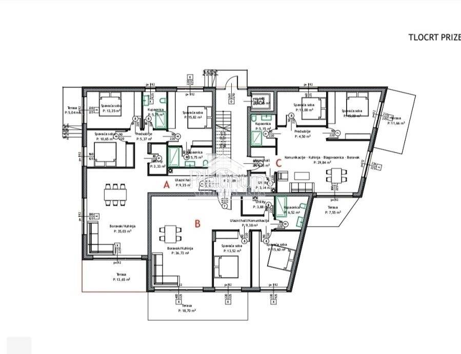
Apartments under construction on the ground floor for sale in a beautiful romantic tourist town. Currently in the stage of receiving reservations. The apartment is located 300 m from the sea and consists of: Entrance hall Living room with kitchen and dining room Entrance hall Three bedrooms Two bathrooms Two terraces Storage in the basement Two parking spaces in the garage with elevator And the associated garden according to the project Air conditioning, underfloor heating with city gas, ceramic-parquet floors, burglar-proof entrance doors, complete internal walls - Knauf, aluminum carpentry with electric blinds and mosquito nets, video intercom, facade - stone wool (10 cm), glass balcony railings, elevator from garage up to the first floor, The planned completion of the works is expected in July 2026 Info on 00385 91 924 9486
Características
Tipología
Piso
Contrato
Venta
Superficie
122 m²
Baños
2
Garaje, plazas de aparcamiento
1 en garaje privado
Información del precio
Precio
€ 680.000
Precio del m²
5.574 €/m²
Eficiencia energética
  • Certificación energética

    Inclasificable
Descubre otros ángulos del inmueble
+4
Opciones adicionales

Contactar con el anunciante

O