Piso de cuatro habitaciones nuevo, segunda planta, Tribunj

€ 432.193
4
100 m²
2
2
Terraza

Nota

Anuncio actualizado el 08/01/2026
Descripción

This description has been translated automatically and may not be accurate

referencia: 44390

ŠIBENIK, TRIBUNJ Penthouse in a luxury new building, sea view

DUX is mediating the sale of a penthouse on the 2nd floor of a new building in Tribunj near Šibenik. The penthouse is located in a multi-apartment building with a total of 9 residential units.

The building extends over a total of four floors: a basement (with storage rooms for each apartment), a ground floor (three residential units with swimming pools) and two floors (each with three residential units with a beautiful sea view). The building is currently under construction and is expected to be completed by the end of 2026.

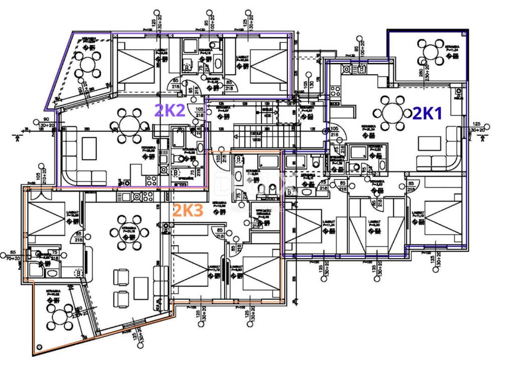
Apartment 2K3 has a total usable area of 100.51 m2 and consists of an open-plan living room, kitchen and dining room, from which there is access to a terrace with a beautiful sea view, three bedrooms and two bathrooms, one of which belongs to the master bedroom, and an additional storage room.
The apartment also has a storage room in the basement of the building and one private parking space in the building's courtyard.

Only the highest quality materials are used in the construction, and the apartments are sold on a turnkey basis. The investor has a number of successfully completed projects behind him, which can be seen as a demonstration of the quality of construction and finishing.

Each apartment will have underfloor heating throughout the apartment, split system air conditioners in all rooms, security doors, aluminum joinery with triple-layered glass, mosquito nets and electric roller shutters, aluminum lift-sliding balcony door walls, floors covered with natural stone, modern bathroom fixtures, TV connections in all bedrooms and living rooms, glass railings on the terraces and an EPS facade with a minimum thickness of 10 cm.

The property is located in a beautiful micro-location only 650 meters from the beach and 1500 meters from the town center and marina. The surrounding area is dominated by an untouched Mediterranean landscape of fields, karst, olive trees and pine trees, which makes this location extremely attractive and authentic.

VAT is included in the price and the buyer is exempt from paying real estate tax!

The center of Vodice is only a few kilometers away, Šibenik is only 15 km away, while Zadar Airport is 58 km away and Split Airport is 66 km away, which makes this location exceptionally well connected. The Krka and Kornati national parks and Vrana Lake are also nearby.

Tribunj is a picturesque fishing village and tourist center not far from Vodice and Šibenik, known for its authentic Mediterranean atmosphere and beautiful marina. It is known for its old stone core on an islet, narrow streets and traditional architecture. The town offers a peaceful vacation with clean beaches, authentic gastronomy and colorful events such as donkey races.

For additional information or to arrange a viewing, please feel free to contact us.

Dear clients, the agency commission is charged in accordance with the General Terms and Conditions:
www.dux-nekretnine.hr/opci-uvjeti-poslovanja

ID CODE: 44390

Ivan Bego
Agent pripravnik
Mob: +385 91 312 1121
Tel: +385 91 480 8808
E-mail: ivan@dux-dalmacija.com
www.dux-nekretnine.hr
Si deseas más información puedes hablar con Ivan Bego.
Características
Tipología
Piso
Contrato
Venta
Planta
2 planta
Superficie
100 m²
Habitaciones
4
Dormitorios
3
Baños
2
Balcón
No
Terraza
Aire acondicionado
Individual, frío/calor
Información del precio
Precio
€ 432.193
Precio del m²
4.322 €/m²
Eficiencia energética
  • Año de construcción

    2026
  • Estado

    Nuevo / En construcción
  • Aire acondicionado

    Individual, frío/calor
  • Certificación energética

    Exento
Descubre otros ángulos del inmueble
+3
Opciones adicionales

Contactar con el anunciante

O