Piso de tres habitaciones nuevo, segunda planta, Viškovo

€ 199.000
3
67 m²
1
2
Balcón
Terraza

Nota

Anuncio actualizado el 14/01/2026
Descripción

This description has been translated automatically and may not be accurate

referencia: 44432

RIJEKA, VIŠKOVO - apartment 5. (67 m2) IN A NEW BUILDING 2R+LR, URBAN BUILDING VIŠKOVO! OPPORTUNITY!

Building under construction.

Planned completion of works is spring 2026.

The listed price includes one parking space, and a second parking space can be purchased at the buyer's request.

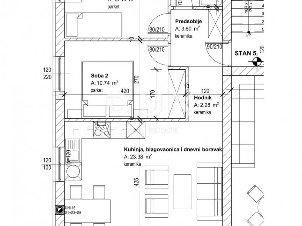
Apartment 5 - second floor
Entrance hall: 3.60 m2
Hallway: 2.28 m2 Kitchen, dining room and living room: 23.38 m2
Balcony: 9.68 m2 Room_1: 13.14 m2
Room_2: 10.74 m2
Bathroom: 4.59 m2
Apartment 5 total net: 67.41 m2

The building is exclusively for residential purposes. It will contain 6 apartments with associated storage rooms in the basement and outdoor parking spaces.

There are 6 storage rooms in the basement for 6 apartments.

There are 2 apartments on the ground floor. There are 2 apartments on the 1st floor. There are 2 apartments on the 2nd floor.

EXTERIOR APPEARANCE AND ENVIRONMENTAL DEVELOPMENT:
The building has simple and functional volumes. The facades are moderately horizontally and vertically indented. The facade will be finished with modern materials, in some of the shades of white and gray. The exterior joinery will be made of PVC, in black. The balcony railings will be glass. The roof type is a flat roof. The undeveloped part of the building plot will be developed as a vehicular and pedestrian area, an area for access to the building, a pedestrian area and a green area. The vehicular and pedestrian area and the area for access to the building will be
paved. The pedestrian area will be paved with concrete elements, and the green areas will be grassy and horticulturally landscaped with the planting of low and tall autochthonous plants.

CONSTRUCTION:
The construction of the building is made of brick blocks, except for the basement walls, which are reinforced concrete. Block brick walls are framed with vertical and horizontal reinforced concrete cerclages. Mezzanine structures are full of reinforced concrete slabs. Staircases and landings are full of reinforced concrete slabs. Columns, beams and lintels are made of reinforced concrete. The foundations and super-foundation walls are made of reinforced concrete. The roof structure is a solid reinforced concrete slab.

INSTALLATIONS:
The building will have water supply and drainage installations, rainwater drainage installation, condensate drainage installation from thermotechnical installation, high and low current electrical installation (telephone and intercom), and mechanical installation of heating, cooling and ventilation.

MICROLOCATION:
The Municipality of Viškovo is located northwest of Rijeka, and represents one of the most propulsive areas, not only within the Primorje-Gorski Kotar County, but also at the state level.
The Municipality of Viškovo is connected to state roads via the main junction Škurinje and via the newly opened junction Rujevica (Rijeka bypass), which facilitates transit and access to the Municipality itself. A total of 5 county and 4 local roads pass through the Municipality. The Municipality of Viškovo is located very close to the border with Slovenia (Rupa border crossing) and is therefore easily and quickly accessible to Slovenians and Italians, and it also partially relies on Opatija as a strong tourist center. The settlement of Viškovo is the administrative center of the municipality. All important institutions are located along the main road: the Municipality, post office, primary school, kindergartens, library, primary health care institutions, pharmacies, banks, church, tourist board, gas stations and a number of grocery stores, as well as various service industries.

REAL ESTATE IN A GREAT AND UNIQUE LOCATION WITH GREAT POTENTIAL!

Definitely a property for family life, but also suitable as an investment in the form of tourism.

Be one step ahead and take advantage of this rare opportunity!

Dear clients, the agency commission is charged in accordance with the General Terms and Conditions:
www.dux-nekretnine.hr/opci-uvjeti-poslovanja

ID CODE: 44432

Rene Nemarnik
Agent s licencom
Mob: +385 91 737 5328
Tel: +385 91 480 8808
E-mail: rene@dux-nekretnine.hr
www.dux-nekretnine.hr
Si deseas más información puedes hablar con Rene Nemarnik.
Características
Tipología
Piso
Contrato
Venta
Planta
2 planta
Ascensor
Superficie
67 m²
Habitaciones
3
Dormitorios
2
Baños
1
Balcón
Terraza
Aire acondicionado
Individual, frío/calor
Información del precio
Precio
€ 199.000
Precio del m²
2.970 €/m²
Eficiencia energética
  • Año de construcción

    2026
  • Estado

    Nuevo / En construcción
  • Aire acondicionado

    Individual, frío/calor
  • Certificación energética

    Exento
Descubre otros ángulos del inmueble
+11
Opciones adicionales

Contactar con el anunciante

O