Casa unifamiliar 176 m², nueva, Vodice

€ 690.000
4
176 m²
3
Terraza

Nota

Anuncio actualizado el 17/01/2026
Descripción

This description has been translated automatically and may not be accurate

referencia: 44560

ŠIBENIK, VODICE Detached modern villa with swimming pool under construction

We offer an attractive detached family house with a swimming pool, located in a quiet part of Vodice, 1200 m from the sea and well-maintained beaches. The property is currently under construction, and the planned completion of works and the possibility of moving in are scheduled for spring/summer 2026. Thanks to modern architecture, quality construction and excellent spatial organization, the house is ideal for family life, vacation or as an investment for tourist rental.

This modern two-story house has a total living area of 176.40 m, with a swimming pool of 19 m, and is located on a plot of 497 m. The property is particularly valuable due to the spacious covered and uncovered terraces of 65 m, which allow you to enjoy the outdoors throughout the year.

The house consists of a ground floor and first floor, connected by an attractive winding floating staircase that gives a special aesthetic impression to the interior.

On the ground floor there is an entrance area with a hallway, toilet and storage, then a spacious open-concept living area with a kitchen, dining room and living room, which, thanks to large glass walls, is flooded with natural light. In the extension of the ground floor there is one bedroom with its own bathroom. The living room opens onto a beautiful terrace with an outdoor bar and a landscaped yard with a swimming pool. At the back of the house there is a 35 m garage, which is connected to the main part of the house via a storage room in the entrance area.

On the first floor there is a hallway and two spacious bedrooms, each with its own bathroom and access to a large terrace, ideal for relaxing and enjoying the peaceful surroundings.

The yard is partially paved and partially landscaped as a green area. The property is fully fenced, and two additional outdoor parking spaces are provided next to the garage. The swimming pool is located in the front part of the yard and is the focal point of the outdoor space.

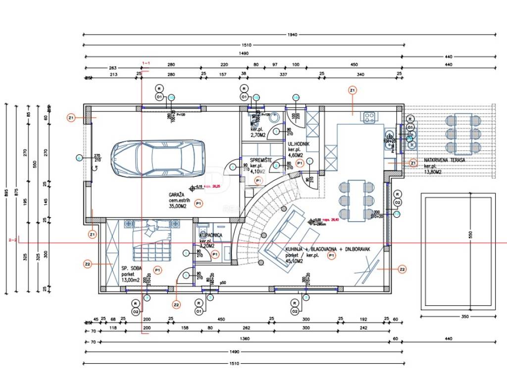
Floor plan:
Ground floor:
Entrance hall
Toilet
Storage room
Open-concept kitchen, dining room and living room
Bedroom with private bathroom
Covered and uncovered terrace
Access to the yard with swimming pool
Garage (35 m)

First floor:
Hallway
Two bedrooms
Two bathrooms (each in the bedroom)
Spacious terrace

Equipment and features:
Distance from the sea and beach: 1200 m
New construction
Modern and contemporary architecture
Swimming pool (19 m)
Triple glazing and sliding glass walls
Electric roller shutters
Mosquito nets
Air conditioning
Water underfloor heating in the bathrooms
Chimney
Burglar-proof entrance door
Attractive floating stairs
Fenced yard
Garage + two outdoor parking spaces

This property represents an excellent opportunity to purchase a modern house with a swimming pool in Vodice, one of the most desirable destinations in central Dalmatia, known for its well-maintained beaches, rich tourist offer and proximity to Šibenik and the Krka and Kornati national parks. An ideal combination of a quiet location, modern design and high quality construction.

Dear clients, the agency commission is charged in accordance with the General Terms and Conditions:
www.dux-nekretnine.hr/opci-uvjeti-poslovanja.

ID CODE: 44560

Dux Šibenik
Mob: +385 99 313 4227
Tel: +385 91 480 8808
E-mail: info@dux-nekretnine.hr
www.dux-nekretnine.hr
Características
Tipología
Casa unifamiliar
Contrato
Venta
Planta
1
Superficie
176 m² | comercial 673 m²
Habitaciones
4
Dormitorios
3
Baños
3
Balcón
No
Terraza
Garaje, plazas de aparcamiento
1 en garaje privado
Aire acondicionado
Individual, frío/calor
Otras características
  • Piscina
Detalle superficie

Vivienda

Planta
1
Superficie
176,0 m²
Coeficiente
100%
Tipo de superficie
Principal
Superficie construida
176,0 m²

Terreno

Planta
Planta baja
Superficie
497,0 m²
Coeficiente
100%
Tipo de superficie
Anexos
Superficie construida
497,0 m²
Información del precio
Precio
€ 690.000
Precio del m²
1.025 €/m²
Eficiencia energética
  • Estado

    Nuevo / En construcción
  • Aire acondicionado

    Individual, frío/calor
  • Certificación energética

    Exento
Descubre otros ángulos del inmueble
+14
Opciones adicionales

Contactar con el anunciante

O