Casa plurifamiliar Kostrena, Kostrena

€ 850.000
4
191 m²
3
No
Terraza

Nota

Anuncio actualizado el 18/04/2026
Descripción

This description has been translated automatically and may not be accurate

referencia: 192

HOUSE SOUTH ONE – TWO-LEVEL RESIDENCE WITH INFINITY POOL AND EXCLUSIVE OUTDOOR SPACE

In the heart of picturesque Kostrena, in the Rožmanići area, lies Kostrena Sunset, an exclusive residential project that combines premium construction, sophisticated design, and the natural harmony of coastal living. Within this luxurious complex stands House South One, an elegant two-level residence designed for those seeking the perfect blend of modern luxury, spaciousness, and breathtaking sea views.
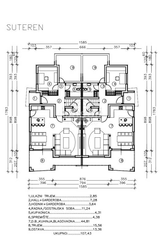
This contemporary home extends over two levels, with a carefully planned layout that ensures both comfort and functionality. The lower level is conceived as an expansive living area emphasizing openness and connection with the outdoors. It includes an entrance porch, hallway, wardrobe, study or guest room, bathroom, storage room, and a spacious living and dining area with a fully equipped custom-made kitchen.
The kitchen features top-of-the-line appliances of the latest generation, combining aesthetics and practicality. The dining table and living room furniture are designed by the prestigious brand Kave Home, giving the interior a distinctive touch of Mediterranean luxury and comfort. From the living area, large glass doors open onto a covered terrace — a perfect setting for relaxation while enjoying the gentle coastal climate and stunning sea views.
The upper level provides a private retreat with three spacious bedrooms, two modern bathrooms, a walk-in wardrobe, and a terrace, while an internal staircase connects both levels. A private garage ensures secure parking and direct access to the residence.
The outdoor space is a true oasis of luxury. The beautifully landscaped garden of 271.25 m² seamlessly merges with the panoramic sea view, while the 30.75 m² infinity pool creates a sense of endlessness and harmony with the surroundings.
On the large terrace in front of the pool, you’ll find premium outdoor furniture by Kave Home, completing the atmosphere of luxury and offering the perfect setting for outdoor gatherings or quiet moments of relaxation.
A versatile space below the pool provides an additional area for entertainment, a barbecue, or a children’s play zone — ideal for enjoying life by the sea in privacy.
The residence includes two outdoor parking spaces (P-1 and P-2), each 12 m², ensuring convenience and security. The total usable outdoor area, including the pool and parking, is 326.0 m².
The construction reflects the highest standards of modern living. The reinforced-concrete structure guarantees strength and longevity. Interior finishes include high-quality multilayer oak parquet suitable for underfloor heating, while the internal staircase is covered with hand-crafted Istrian white stone, adding a touch of timeless elegance.
The exterior joinery is SCHUCO LIVING 82 AS PVC in anthracite, featuring triple-layer thermal glass for energy efficiency and weather protection. Electric shutters and tempered-glass balconies ensure privacy while maximizing sea views. The façade is executed in the BAUMIT PRO ETICS system with a 10-cm insulation layer and silicate plaster in refined grey and white tones.
Heating is provided by a water underfloor system powered by a heat pump, while all rooms feature multi-split inverter air conditioning. The building has an A+ energy certificate, guaranteeing top-tier efficiency, reduced energy consumption, and long-term value.

House South One represents a rare opportunity to own a luxurious home in a prestigious seaside location - perfect as an exclusive residence or as a secure long-term investment.

For more information and a private tour, please contact us.

Maison – because home is not just a place, it’s a way of life.

ID CODE: 192

Dario Oriović
CEO
Mob: +385 91 474 0205
Tel: +385 51 640 777
E-mail: dario@maison-nekretnine.com
www.maison-nekretnine.com
Características
Tipología
Casa plurifamiliar
Contrato
Venta
Plantas del edificio
1
Ascensor
No
Superficie
191 m²
Habitaciones
4
Dormitorios
3
Baños
3
Balcón
No
Terraza
Garaje, plazas de aparcamiento
1 en garaje privado, 3 en aparcamiento/garaje público
Calefacción
Individual, por aire
Aire acondicionado
Individual, frío/calor
Información del precio
Precio
€ 850.000
Precio del m²
4.450 €/m²
Eficiencia energética

Consumo de energia

A+

Plano
Descubre otros ángulos del inmueble
+22
Opciones adicionales

Contactar con el anunciante

O