Casa unifamiliar Labin, Labin

€ 780.000
5
346 m²
3+
No
Terraza

Nota

Anuncio actualizado el 22/01/2026
Descripción

This description has been translated automatically and may not be accurate

referencia: 1438

Labin area, beautiful villa with a pool and rooftop terrace – Villa E

We present Villa E, part of an exclusive project of 5 modern villas located in a peaceful and idyllic setting near Labin. This impressive villa, with a spacious plot and top-notch amenities, offers the perfect combination of luxury, privacy, and functionality, making it ideal as a family home or an investment for tourist rental.

Key Features
Gross Area: 346 m²
Net Usable Area: 304 m²
Plot Size: 2,642 m²
Landscaped Yard: 825 m² (703 m² green area and 122 m² paved terraces)
Parking: 138 m²
Outdoor Space
The yard is carefully designed and equipped for maximum comfort:

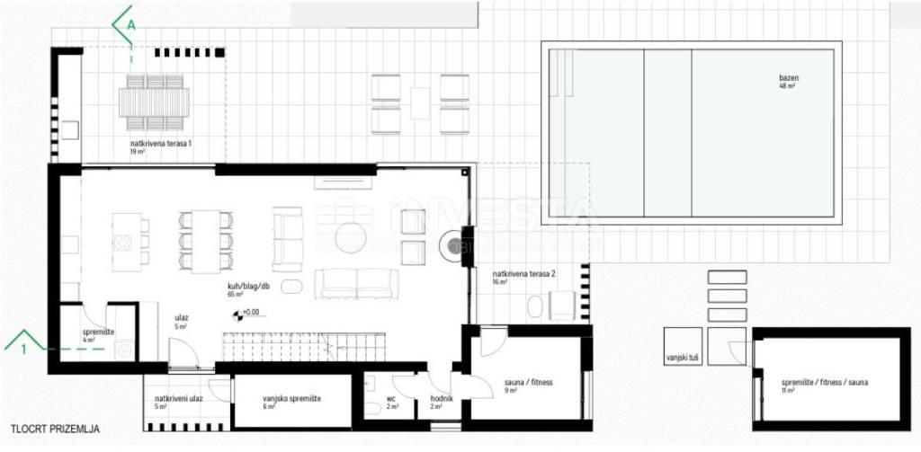
Pool size 9 x 5.3 m with a shallow children's section and a deeper section for relaxation and enjoyment.
Covered outdoor kitchen on the terrace, perfect for gatherings and family meals.
Outdoor shower for additional convenience by the pool.
Auxiliary building of 12 m², serving as storage with conversion possibilities.
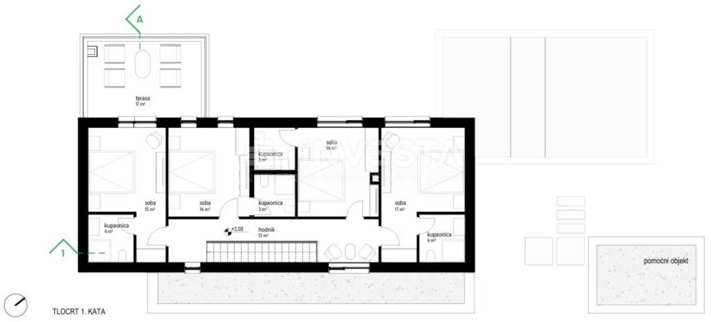
Rooftop terrace of 17 m², offering a peaceful space to relax with a partial view of nature.
Interior Space
Villa E spans two floors:

Ground Floor:

Spacious open-plan living room connected to the kitchen and dining area, with access to two covered terraces.
Pantry next to the kitchen for better space organization.
Sauna or fitness room with direct access to the terrace.
Guest WC.
1st Floor:

Four elegant bedrooms, each with its own bathroom.
One bedroom has access to the 17 m² rooftop terrace, perfect for private relaxation.
Technical Equipment
Pool: Water surface of 48 m² divided into a shallow children's area and a deeper section.
Energy Efficiency: 5.46 kWp solar panels to reduce energy consumption.
Heating and Cooling: Inverter air-conditioning system and underfloor heating via a fan-coil system.
Finish Customization: Option to choose finishes according to the future owner's preferences.
Location and Amenities
Villa E is located in an extremely quiet and sought-after area, with immediate proximity to all essential services: shops, schools, post office, health center, sports facilities, and restaurants. In addition to providing ideal living conditions, this property represents an excellent investment opportunity for tourist rentals with a quick return on investment.

Conclusion
Villa E, as part of a luxury project of 5 villas, is the perfect blend of modern design, spaciousness, and cutting-edge technical solutions. The spacious yard, pool, rooftop terrace, and carefully designed interior make this villa an exceptional property for living or investment.

Completion Deadline: June 2025.

For additional information or to arrange a viewing, feel free to contact us!

ID CODE: 1438

Đankarlo Čekić
Mob: +385 99 237 6130
Tel: +385 52 33 00 33
E-mail: dan@investa.hr
www.investa.hr
Características
Tipología
Casa unifamiliar
Contrato
Venta
Plantas del edificio
1
Ascensor
No
Superficie
346 m²
Habitaciones
5
Dormitorios
4
Baños
3+
Balcón
No
Terraza
Aire acondicionado
Individual, frío/calor
Otras características
  • Puerta blindada
Información del precio
Precio
€ 780.000
Precio del m²
2.254 €/m²
Eficiencia energética
  • Aire acondicionado

    Individual, frío/calor
  • Certificación energética

    Inclasificable
Plano
Descubre otros ángulos del inmueble
+16
Opciones adicionales

Contactar con el anunciante

O