Casa unifamiliar Murter, Murter-Kornati

€ 2.700.000
5+
928 m²
3+
No
Terraza

Nota

Anuncio actualizado el 22/01/2026
Descripción

This description has been translated automatically and may not be accurate

referencia: H-121-H

MURTER - A beautiful villa for sale, located on the waterfront, close to the sea, offers top luxury and historical charm! Suitable for private or business use, the property has a special atmosphere and an interesting position. It has been remodeled and is used as a mini-hotel, heritage hotel category.

The villa itself dates from 1898 and is recognized as a cultural heritage. It has been thoroughly and superbly renovated for hospitality purposes, for renting rooms, suites, a coffee bar and restaurant, and with additional content such as a wellness corner.
It is designed with attention to detail and combines modern comfort with traditional style and furniture. It consists of a total of four floors. The net area of the building is 774 m2, while the gross area is 928.96 m2.

The ground floor exudes opulence and elegance, where there is an outdoor terrace with a view of the sea, a coffee bar/bar, a restaurant and a well-equipped kitchen, toilets and staff cloakrooms, anteroom guest toilets, 2 x toilets, two storage rooms, pool equipment, hot water boilers (solar), air conditioning, entrance hall, massage area, gym, sauna with showers, sauna, additional WC-female, WC-male and laundry room. The total net area of the ground floor is 311.62 m2.

The first floor has a spacious entrance area, a reception area and a comfortable terrace with a 25.20 m2 pool where sun loungers and lounge furniture are placed.
On this floor there are also two luxury suites, A1 and A2. The total net area of the first floor is 201.24 m2.

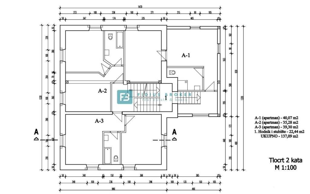
The second floor consists of a corridor, a staircase and three beautiful suite apartments, A1, A2 and A3. The total net area of the second floor is 137.09 m2.

In the attic there is also a suite apartment and three beautiful rooms, S1, S2 and S3. The total net area of the attic is 126.48 m2.

The bathrooms were renovated in 2019, and the furniture was newly upholstered, and the parquet in the rooms was varnished.

This villa has been successfully operating as a mini-hotel for fourteen years, providing an amazing experience to guests. Additional amenities include a coffee bar with a terrace where breakfast is served, as well as a fully equipped kitchen that is ready to open a restaurant.

If you are looking for true luxury and a unique experience by the waterfront, this luxury villa is the right choice for you.

The price is €2,700,000

For additional information, contact us by e-mail or phone.

ID CODE: H-121-H

Fidius Broker
Voditelj ureda
Mob: ++385 91 3375522
Tel: ++385 91 5135719
E-mail: info@fidiusbroker.hr
www.fidiusbroker.hr
Características
Tipología
Casa unifamiliar
Contrato
Venta
Plantas del edificio
3
Ascensor
No
Superficie
928 m²
Habitaciones
5+
Dormitorios
9
Baños
3+
Balcón
No
Terraza
Calefacción
Individual, por aire
Aire acondicionado
Individual, frío/calor
Información del precio
Precio
€ 2.700.000
Precio del m²
2.909 €/m²
Eficiencia energética
  • Año de construcción

    1898
  • Calefacción

    Individual, por aire
  • Aire acondicionado

    Individual, frío/calor
  • Certificación energética

    Inclasificable
Plano
Descubre otros ángulos del inmueble
+50
Opciones adicionales

Contactar con el anunciante

O