1/9


Piso de tres habitaciones Finida, Umag, Centar, Luka, Finida, Umag
€ 254.000
Anuncio actualizado el 22/01/2026
Descripción
referencia: 5455
ID CODE: 5455
Istra dom nekretnine
Mob: 0912776234
Tel: +385 52 381 040
E-mail: nekretnine@istra-dom.com
www.istra-dom.com
Características
- Tipología
- Piso
- Contrato
- Venta
- Planta
- 2 planta
- Plantas del edificio
- 2
- Ascensor
- No
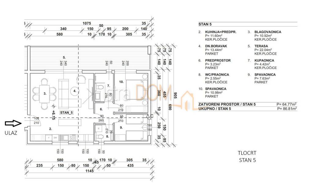
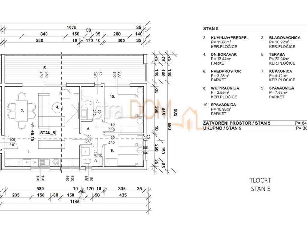
- Superficie
- 79 m²
- Habitaciones
- 3
- Dormitorios
- 2
- Baños
- 1
- Balcón
- No
- Terraza
- Sí
- Garaje, plazas de aparcamiento
- 1 en aparcamiento/garaje público
- Calefacción
- Individual, por aire
- Aire acondicionado
- Individual, frío/calor
Otras características
Información del precio
- Precio
- € 254.000
- Precio del m²
- 3.215 €/m²
Eficiencia energética
Año de construcción
2025Calefacción
Individual, por aireAire acondicionado
Individual, frío/calorCertificación energética
Inclasificable
Descubre otros ángulos del inmueble
Opciones adicionales