Piso de tres habitaciones Kosi, Viškovo, Viškovo

€ 215.000
3
73 m²
1
B
No

Nota

Anuncio actualizado el 26/03/2026
Descripción

This description has been translated automatically and may not be accurate

referencia: 2832

Viškovo – Kosi
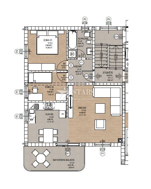
Apartment S1 – Two-bedroom apartment with living room

For sale is a two-bedroom apartment with a living room (S1), located on the ground floor of a modern residential building(A) in a peaceful area of Kosi, surrounded by greenery, offering a beautiful view of the Kvarner Bay.

The apartment has a three-sided orientation, is exceptionally bright, and functionally laid out. The living room and dining area open onto a spacious balcony, and from the living room, there is an open sea view. The kitchen is placed in a practical corner area, while the bathroom includes space for a washer and dryer. Both bedrooms are well-shaped and well-lit. All rooms have natural ventilation.

Features and Specifications:
-underfloor heating throughout the apartment
-air conditioning in the living room
-bathroom with space for washer and dryer
-storage room in the basement
-two parking spaces next to the building

Project and Timeline:
-construction start: 01/2026
-completion: 06/2027
-turnkey sale
-buyer does not pay real estate transfer tax
-possible VAT refund of 50% for first-time buyers

Price: €215,000

Possibility of staged payment (with a €10,000 discount):

-1st installment – 30% (after signing the pre-contract)
-2nd installment – 30% (upon completion of the structural phase)
-3rd installment – 30% (after installation of windows and first phase of installations)
-4th installment – 10% (upon obtaining the occupancy permit)

For more information or to schedule a viewing, contact the agent directly.

ID CODE: 2832

Deni Čaluk
Prodajni predstavnik
Mob: +385 99 302 5014
Tel: +385 51 302 501
E-mail: deni.caluk@starsrealestate.hr
https://starsrealestate.hr
Características
Tipología
Piso
Contrato
Venta
Planta
Planta baja
Plantas del edificio
2
Ascensor
No
Superficie
73 m²
Habitaciones
3
Dormitorios
2
Baños
1
Balcón
No
Terraza
No
Garaje, plazas de aparcamiento
2 en aparcamiento/garaje público
Calefacción
Individual, por aire
Aire acondicionado
Individual, frío/calor
Información del precio
Precio
€ 215.000
Precio del m²
2.945 €/m²
Eficiencia energética
  • Año de construcción

    2026
  • Calefacción

    Individual, por aire
  • Aire acondicionado

    Individual, frío/calor
  • Certificación energética

    Inclasificable
Plano
Descubre otros ángulos del inmueble
+10
Opciones adicionales

Contactar con el anunciante

O