Casa unifamiliar Malinska, Malinska-Dubašnica, Malinska

€ 890.000
5
165 m²
3
No
Terraza

Nota

Anuncio actualizado el 18/02/2026
Descripción

This description has been translated automatically and may not be accurate

referencia: 4328

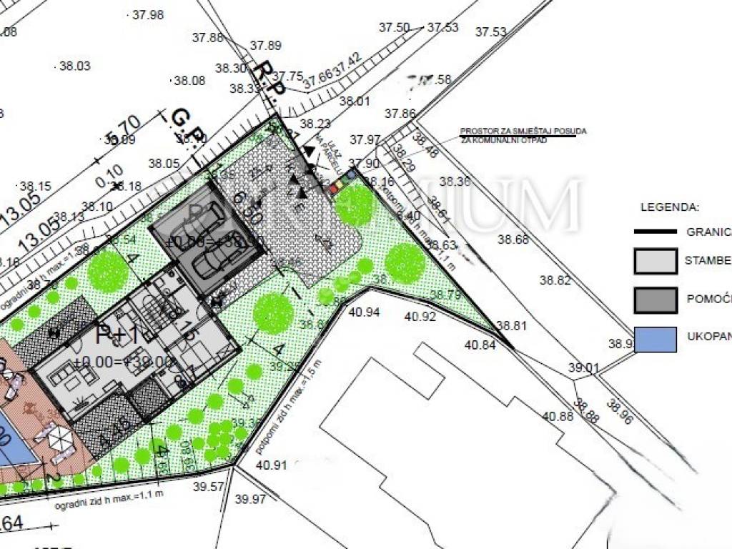
Malinska, sale, modern, detached house, with sea view, swimming pool, and garage, in an attractive location!

The house of 165 m2 consists of a ground floor and a first floor.
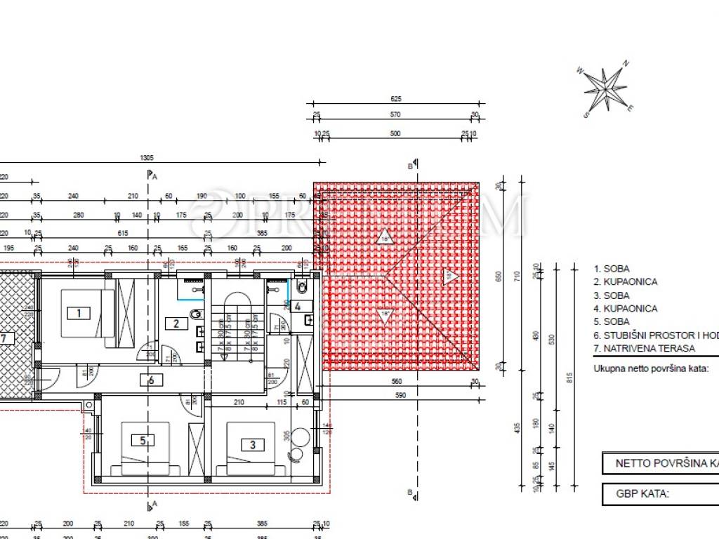
On the first floor there is a hallway, a bathroom, bedroom, a master bedroom with a wardrobe and a bathroom, and a third bedroom with an exit to the covered terrace, which offers a beautiful view of the sea.
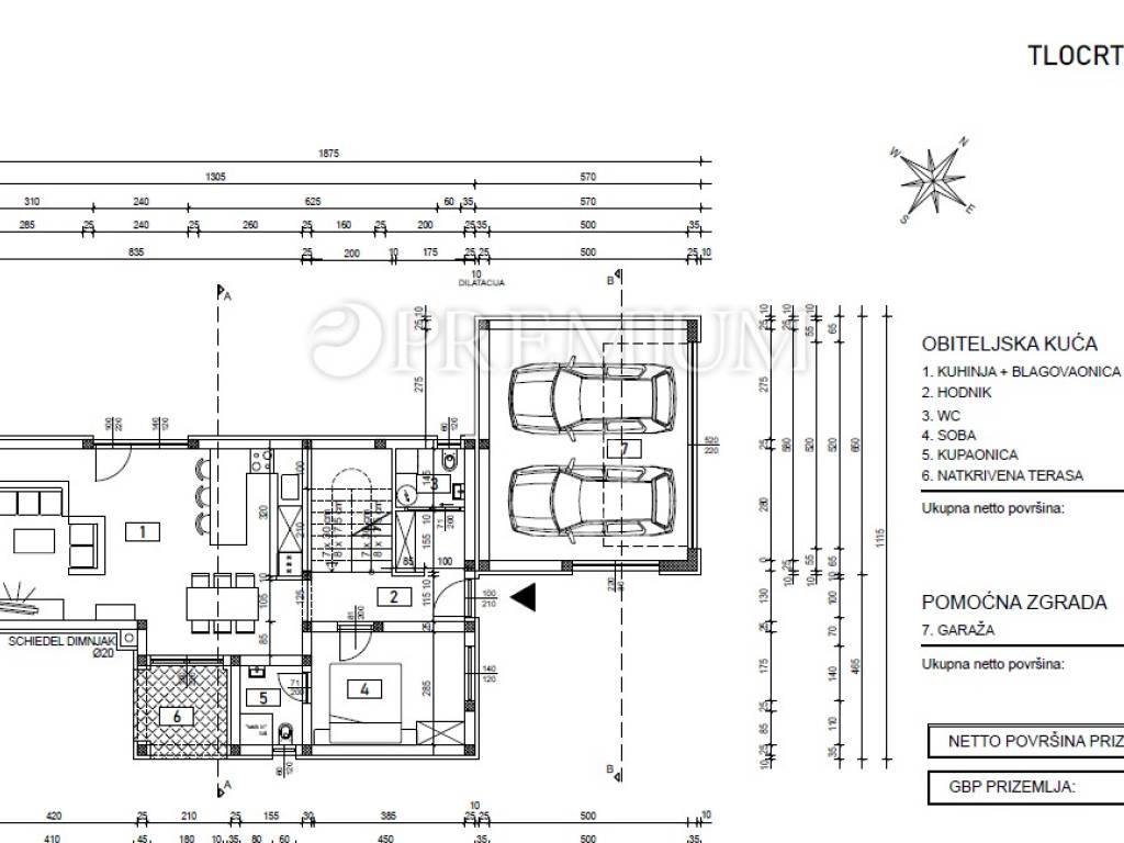
An internal staircase leads to the ground floor, where there is a hallway, a guest toilet, a bedroom with a bathroom, a spacious, open space living room with a kitchen and a dining room, with access to the terrace and garden, where there is a swimming pool with a sunbathing area.
The house also has a garage of 29 m2, for parking two cars.

The house is decorated with a modern design, high-quality materials, excellent room layout, ceramic and parquet floor coverings, underfloor heating, air conditioning in all rooms.

Attractive location, close to all amenities, 750 m from the sea!
Turnkey sale, expected completion of works 12/2025.

ID CODE: 4328

Premium nekretnine Malinska
Mob: +385915474709
Tel: +38551858364
E-mail: info@premium-nekretnine.com
Características
Tipología
Casa unifamiliar
Contrato
Venta
Plantas del edificio
1
Ascensor
No
Superficie
165 m²
Habitaciones
5
Dormitorios
4
Baños
3
Balcón
No
Terraza
Garaje, plazas de aparcamiento
1 en garaje privado
Calefacción
Individual, por aire
Aire acondicionado
Individual, frío/calor
Otras características
  • Puerta blindada
Información del precio
Precio
€ 890.000
Precio del m²
5.394 €/m²
Eficiencia energética
  • Año de construcción

    2025
  • Calefacción

    Individual, por aire
  • Aire acondicionado

    Individual, frío/calor
  • Certificación energética

    Inclasificable
Descubre otros ángulos del inmueble
+19
Opciones adicionales

Contactar con el anunciante

O