Casa plurifamiliar Malinska, Malinska-Dubašnica, Malinska

€ 495.000
4
100 m²
3
No
Balcón
Terraza

Nota

Anuncio actualizado el 18/02/2026
Descripción

This description has been translated automatically and may not be accurate

referencia: 4433

Malinska, For Sale: Semi-Detached House Under Construction, 800 m from the Center and the Sea

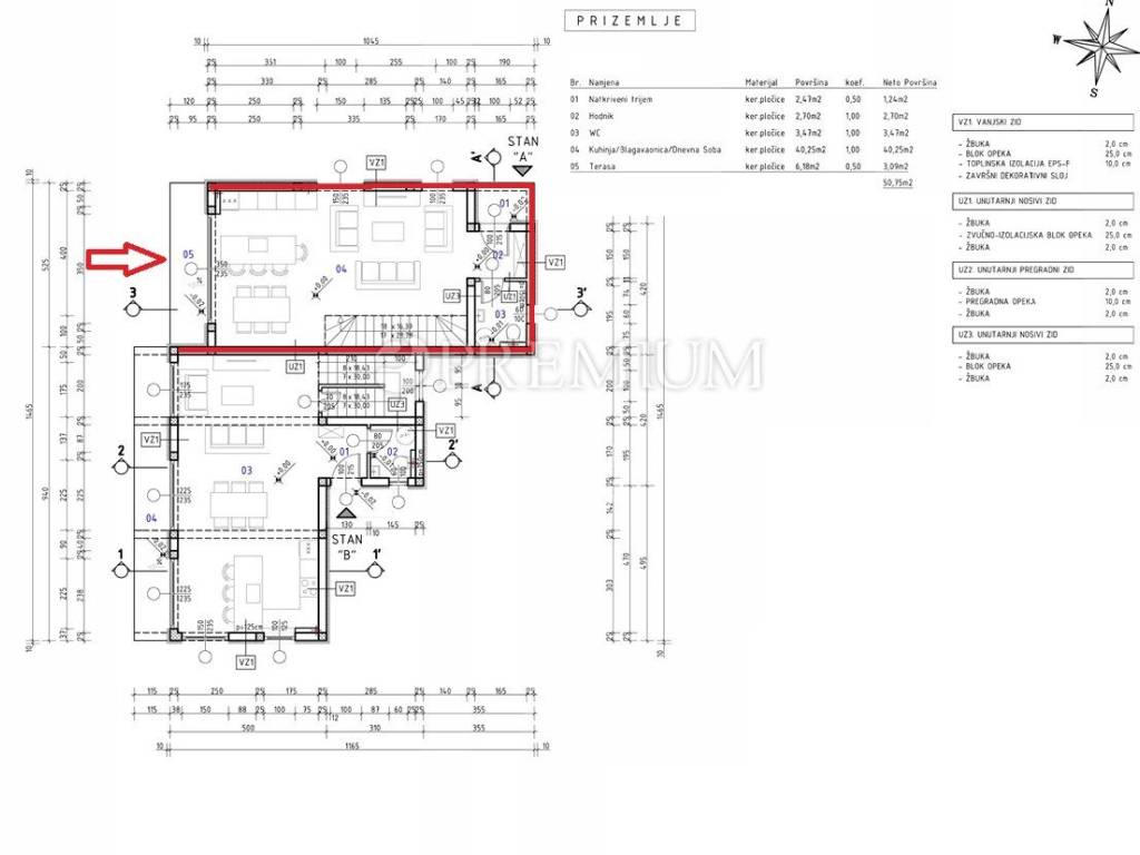
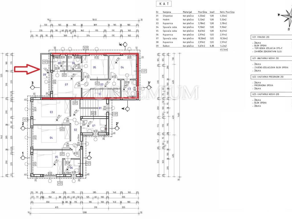
The house consists of a ground floor and first floor, with a total living area of 100 m². The ground floor includes an entrance hall, kitchen, dining room, living room, toilet, and terrace. The first floor features 3 bedrooms, 3 bathrooms, a hallway, and a balcony. The plot area is approximately 100 m². On the plot, there is an 18 m² swimming pool and two parking spaces.

High-quality construction using premium materials. The house will be air-conditioned in all rooms. Flooring: ceramic tiles, PVC joinery, electric underfloor heating, and every room will be air-conditioned. Completion and move-in are scheduled for December 2025.

The house is located in a quiet area surrounded by newly built holiday homes.

Don’t miss the opportunity to buy!
For additional information and to schedule a viewing, feel free to contact us.

ID CODE: 4433

Premium nekretnine Malinska
Mob: +385915474709
Tel: +38551858364
E-mail: info@premium-nekretnine.com
Características
Tipología
Casa plurifamiliar
Contrato
Venta
Plantas del edificio
1
Ascensor
No
Superficie
100 m²
Habitaciones
4
Dormitorios
3
Baños
3
Balcón
Terraza
Garaje, plazas de aparcamiento
2 en aparcamiento/garaje público
Calefacción
Individual, por aire
Aire acondicionado
Individual, frío/calor
Información del precio
Precio
€ 495.000
Precio del m²
4.950 €/m²
Eficiencia energética
  • Año de construcción

    2025
  • Calefacción

    Individual, por aire
  • Aire acondicionado

    Individual, frío/calor
  • Certificación energética

    Inclasificable
Descubre otros ángulos del inmueble
+5
Opciones adicionales

Contactar con el anunciante

O