Piso de tres habitaciones Monvidal, Pula, Monvidal - Monte Ghiro, Pula

€ 270.000
3
140 m²
2
2
No
Balcón
Terraza

Nota

Anuncio actualizado el 22/01/2026
Descripción

This description has been translated automatically and may not be accurate

referencia: 3337

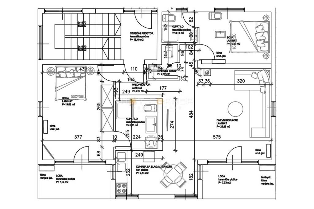
Offering a penthouse on the 2nd floor of a small residential building in Pula, in a quieter neighborhood, the Monvidal/Šijana area. This new construction consists of the ground floor, first and second floors, with each apartment covering one floor. The featured apartment is located on the 2nd floor (top floor) and has a total area of about 105m2, consisting of an entrance hall (4.2m2), a living room (28.56m2), a kitchen with a dining area (9.14m2), a bedroom (10.52m2) with its own bathroom (3.11m2), a bedroom (19.08m2) with its own bathroom (5.8m2), a toilet (2.12m2), and 2 balconies (7.33m2 and 7.04m2).

The apartment also comes with one parking space in front of the building, equipped with an electric vehicle charger and a water connection for car washing. The apartment also includes a garden (part of the courtyard) with an area of about 30m2, equipped with water, electricity, and sewage connections for installing a summer kitchen and barbecue. The apartment also includes a storage room in the attic of the building.

The building is fully constructed with a roof and facade, featuring installed PVC windows with electric blinds and internal walls. The planned completion and move-in date are expected in spring 2024. The apartments will be equipped with anti-burglary entrance doors, inverter air conditioning units (1 in each bedroom and living room, totaling 3 units), underfloor electric heating throughout the apartment, intercom, outlets and switches, TV antenna, and stainless steel railing on the terraces. The bathrooms will be furnished with a walk-in shower with a channel, suspended sanitary ware. The buyer has the option to choose laminate and ceramic tiles.

An excellent apartment for luxurious family living, as it has all the necessary features, and certainly for renting for tourism.

The agreed upon purchase price includes the contracted agency commission according to the terms of business and company fees. Documentation is in order and without burdens.

For more information, viewing, and project details, contact:
Dean
+385 99 369 9053

ID CODE: 3337

Dean Ostović
Ovlašteni agent
Mob: +385 99 369 9053
Tel: +385 52 212 841
Fax: +385 52 212 841
E-mail: dean@hotcorner.hr
www.hotcorner.hr
Características
Tipología
Piso
Contrato
Venta
Planta
2 planta
Plantas del edificio
2
Ascensor
No
Superficie
140 m²
Habitaciones
3
Dormitorios
2
Baños
2
Balcón
Terraza
Garaje, plazas de aparcamiento
1 en aparcamiento/garaje público
Aire acondicionado
Individual, frío/calor
Información del precio
Precio
€ 270.000
Precio del m²
1.929 €/m²
Eficiencia energética
  • Año de construcción

    2023
  • Aire acondicionado

    Individual, frío/calor
  • Certificación energética

    Inclasificable
Plano
Descubre otros ángulos del inmueble
+5
Opciones adicionales

Contactar con el anunciante

O