Piso de cuatro habitaciones Novigrad, Novigrad

€ 525.000
4
123 m²
2
B
No
Terraza

Nota

Anuncio actualizado el 14/04/2026
Descripción

This description has been translated automatically and may not be accurate

referencia: ID02004

Novigrad - Apartment with a pool on the ground floor, in a great location 700 m from the sea! New construction!

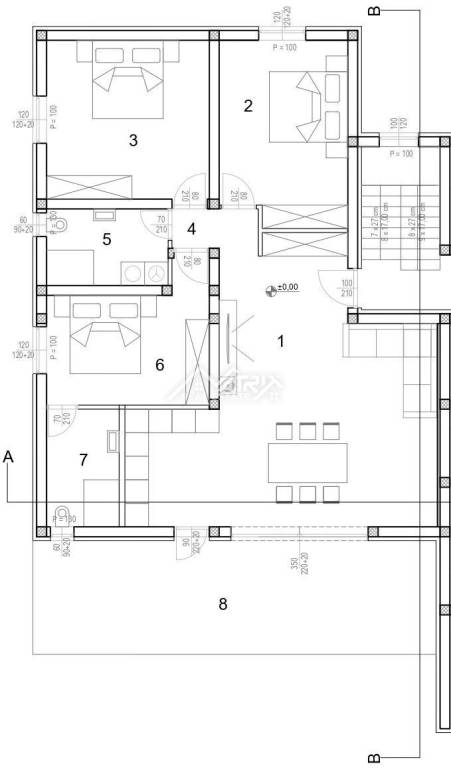
Welcome to this beautiful apartment with a total area of ​​123.63 m2, located in a great location very close to the sea and the city, and within walking distance of all necessary amenities. The apartment is located in a building with only 8 apartments, in a location that ideally combines a quiet environment, proximity to the coast and easy access to all the amenities needed for everyday life.

The apartment is located on the ground floor of the building, and consists of an entrance hall, a large open space that unites the kitchen, dining room and living room with access to the outdoor, partly covered, terrace through large glass walls that provide plenty of natural light throughout the day. The uncovered part of the terrace surrounds a beautiful pool of 27 m2 that belongs only to this apartment. The apartment also has three bedrooms and two bathrooms, one of which is intended to belong to the master bedroom.

In addition, the apartment has two outdoor parking spaces. The apartment is sold on a turnkey basis, without furniture. Air conditioners are provided for heating and cooling in all rooms, while electric underfloor heating is installed in the bathrooms.

The apartments are currently under construction, and the planned completion of the works and occupancy is by June 1, 2025.

This apartment provides an ideal home for all those who aspire to a luxurious and relaxing lifestyle in beautiful surroundings. Whether you are looking for a peaceful retreat to get away from the hustle and bustle of everyday life or you are looking to invest, this property is sure to meet and exceed all your expectations.

ID CODE: ID02004

Daniel Matković
Agent s licencom
Mob: +385 95 506 58 05
Tel: +385 52 417 779
E-mail: daniel@matrixrealestate.hr
https://matrixrealestate.hr/

Matrix Real Estate
Voditelj ureda
Mob: +385 52 417 779
Tel: +385 52 417 779
E-mail: info@matrixrealestate.hr
https://matrixrealestate.hr/
Características
Tipología
Piso
Contrato
Venta
Planta
Planta baja
Plantas del edificio
2
Ascensor
No
Superficie
123 m²
Habitaciones
4
Dormitorios
3
Baños
2
Balcón
No
Terraza
Garaje, plazas de aparcamiento
2 en aparcamiento/garaje público
Aire acondicionado
Individual, frío/calor
Información del precio
Precio
€ 525.000
Precio del m²
4.268 €/m²
Eficiencia energética
  • Año de construcción

    2025
  • Aire acondicionado

    Individual, frío/calor
  • Certificación energética

    Inclasificable
Plano
Descubre otros ángulos del inmueble
+3
Opciones adicionales

Contactar con el anunciante

O