Casa unifamiliar Malinska, Malinska-Dubašnica, Malinska

€ 890.000
5
199 m²
3
No
Terraza

Nota

Anuncio actualizado el 22/01/2026
Descripción

This description has been translated automatically and may not be accurate

referencia: 102585

Among the wide range of properties offered by Stan Grad Immobilien on the northern Adriatic, a very luxurious Mediterranean villa stands out in the attractive tourist region of Island Krk. This house is positioned in a peaceful location near the town of Malinska, not far from the sea.

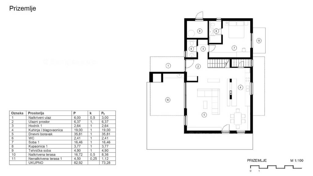
Structurally, this is a detached two-story house with a spacious yard and a swimming pool. The house itself covers a total usable area of 177.12 m². On the ground floor, it consists of an entrance space, hallway, WC, bathroom, a room with access to an uncovered terrace, technical room, kitchen with dining area, and a spacious living room with access to a covered terrace featuring an outdoor kitchen and grilling area. The first floor contains 3 spacious bedrooms, one of which has an en-suite bathroom, a walk-in shower, and access to an external uncovered terrace. The other two rooms share a bathroom.

The property also includes a well-organized yard with an auxiliary building totaling 22.5 m². Of this, 15 m² is designated for spa facilities on the ground floor, which includes a sauna, jacuzzi, and wellness area for relaxation, while the remaining 7.5 m² is allocated for storage in the basement of the building.

The rest of the beautifully landscaped yard, covering approximately 658 m², features a large heated pool of 46.5 m², a sunbathing area, and a lounge space with a fireplace in the center. The backyard offers ample parking space for at least two vehicles. The property is characterized by high-quality construction and premium equipment. The villa will be equipped with top-notch carpentry, flooring made of high-quality ceramics and stone, premium sanitary fixtures, ceiling air conditioning, and underfloor heating with a heat pump. The surrounding environment will be beautifully landscaped with Mediterranean plants, green areas, and plenty of stone details.

This property is owned by a private individual, and the buyer will be required to pay a 3% property transfer tax when acquiring the property. The owner guarantees the proper ownership and technical documentation and a quick transfer of ownership to the buyer. We warmly welcome you to our office on Island Krk. If you place your trust in us, Stan Grad Immobilien will be happy to assist you in transferring the ownership rights of this property, as well as the accounts for its utilities, into your name.

ID CODE: 102585

Ivan Radman
Direktor, agent
Mob: +385 91 605 1497
Tel: +385 51 677 809
Fax: +385 51 677 809
E-mail: ivan.radman@stangrad.hr
www.stangrad.hr
Características
Tipología
Casa unifamiliar
Contrato
Venta
Ascensor
No
Superficie
199 m²
Habitaciones
5
Dormitorios
4
Baños
3
Balcón
No
Terraza
Garaje, plazas de aparcamiento
2 en aparcamiento/garaje público
Aire acondicionado
Individual, frío/calor
Otras características
  • Puerta blindada
Información del precio
Precio
€ 890.000
Precio del m²
4.472 €/m²
Eficiencia energética
  • Año de construcción

    2023
  • Aire acondicionado

    Individual, frío/calor
  • Certificación energética

    Inclasificable
Plano
Descubre otros ángulos del inmueble
+4
Opciones adicionales

Contactar con el anunciante

O