Piso de cuatro habitaciones Srima, Vodice, Vodice

€ 452.298
4
107 m²
2
B
Terraza

Nota

Anuncio actualizado el 28/01/2026
Descripción

This description has been translated automatically and may not be accurate

referencia: 7282-S2

Attractive location in Srima, new construction – residential building with a total of 8 housing units. The building consists of three floors: ground floor, first floor, and second floor, and is equipped with an elevator. The building features a modern design and is equipped with air conditioning for heating and cooling in every room, electric underfloor heating, security entrance door, aluminum joinery, electric roller shutters, mosquito screens, and modern bathroom fittings. Expected move-in date: end of 2026.

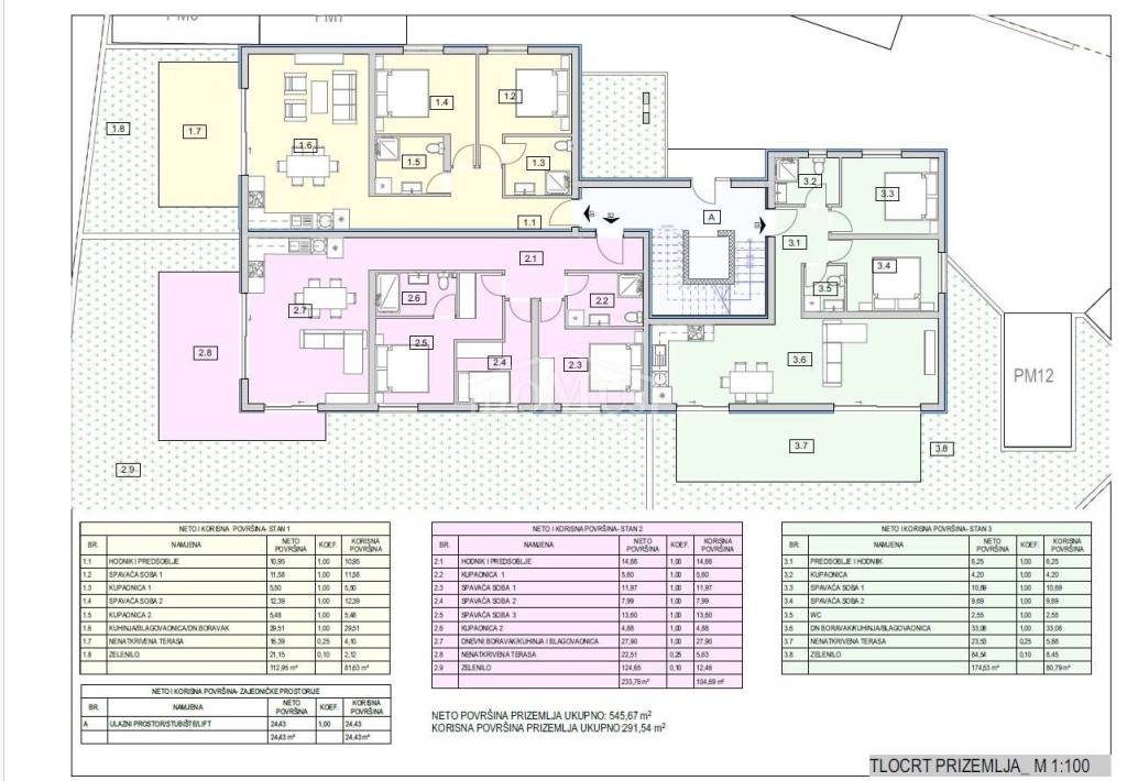
Residential unit "S2" is located on the ground floor of the building, has a usable area of 107.69 m2. The apartment consists of an entrance hall, three bedrooms, one of which has its own bathroom, one separate bathroom, kitchen with dining room and living room with access to an uncovered terrace of 22.51 m2. The apartment has one outdoor parking space and a garden of 124.65 m2. The building is located only 100 m from the beach and 700 m from the center.

ID CODE: 7282-S2

Diana Knežević
Mob: 00 385 95 289 4518
Tel: +385 22 444 620
Fax: +385 22 444 621
E-mail: knezevic@domus-nekretnine.hr
http://domus-nekretnine.hr

Martina Silov
Mob: 00385 95 587 8860
Tel: +385 22 444 620
Fax: +385 22 444 621
E-mail: martina@domus-nekretnine.hr
http://domus-nekretnine.hr

Katarina Marasović
Mob: 00 385 98 392 954
Tel: +385 22 444 620
Fax: +385 22 444 621
E-mail: catherine@domus-nekretnine.hr
http://domus-nekretnine.hr
Características
Tipología
Piso
Contrato
Venta
Planta
Planta baja
Plantas del edificio
2
Ascensor
Superficie
107 m²
Habitaciones
4
Dormitorios
3
Baños
2
Balcón
No
Terraza
Garaje, plazas de aparcamiento
1 en aparcamiento/garaje público
Aire acondicionado
Individual, frío/calor
Otras características
  • Puerta blindada
Información del precio
Precio
€ 452.298
Precio del m²
4.227 €/m²
Eficiencia energética
  • Aire acondicionado

    Individual, frío/calor
  • Certificación energética

    Inclasificable
Plano
Descubre otros ángulos del inmueble
+2
Opciones adicionales

Contactar con el anunciante

O