Piso Rovinj, Rovinj

€ 950.000
5
159 m²
1
Terraza

Nota

Anuncio actualizado el 22/01/2026
Descripción

This description has been translated automatically and may not be accurate

referencia: ID04062

Rovinj, luxurious two-story apartment just 150 m from the sea

Located in one of the most beautiful towns on the Adriatic coast, Rovinj, famous for its picturesque streets, historical charm, and crystal-clear sea, a luxurious two-story apartment with a surface area of 159 m², including terraces, is up for sale, just minutes from the beach. This sophisticated home combines modern design and comfort in a city known for its charm and natural beauty. With its rich cultural heritage, excellent restaurants, and Mediterranean atmosphere, Rovinj is an ideal place to live or vacation.

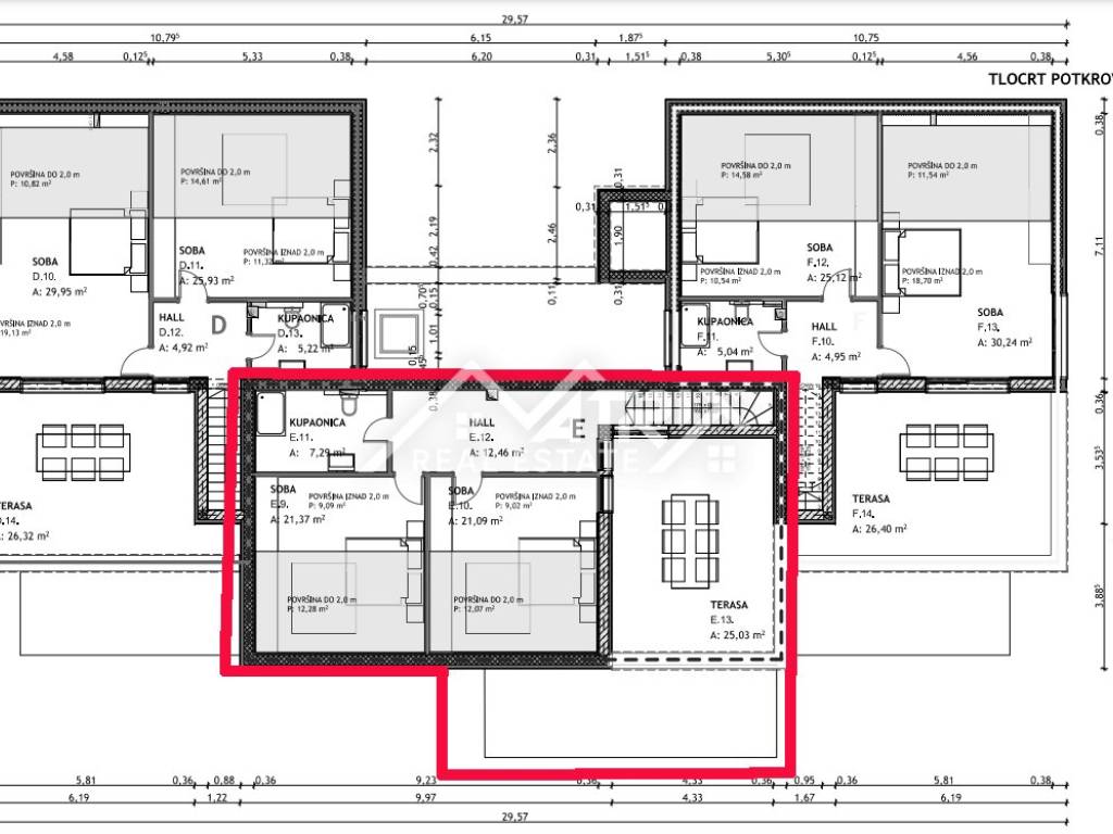
The apartment is situated on the upper floor of the building and is designed to provide maximum comfort. The layout includes four bedrooms and three bathrooms. The lower level features two bedrooms, each with its private bathroom, while the upper level contains two additional bedrooms sharing a common bathroom. The upper level also offers access to a spacious terrace, perfect for relaxation or entertaining outdoors.

The interior features a living and dining area with a modern design, air-conditioned rooms, underfloor heating connected to the city gas supply for comfort during colder months, and high-quality ceramic or parquet flooring. A smaller storage room is also conveniently located within the apartment.

The apartment is equipped with aluminum joinery with electric shutters and insect screens, security entrance doors, and a video intercom. Elegant glass balcony railings emphasize the building's contemporary style.

The property includes two parking spaces in the garage and an additional storage room in the building's basement. An elevator connects all floors, including the garage, ensuring maximum convenience.

The building is fully completed, and the apartment is ready for occupancy. The price includes VAT, meaning the buyer does not pay additional property transfer tax.

This apartment offers a unique opportunity for luxurious living in the heart of Rovinj and awaits its new owner.

ID CODE: ID04062

Matrix Real Estate
Voditelj ureda
Mob: +385 52 417 779
Tel: +385 52 417 779
E-mail: info@matrixrealestate.hr
https://matrixrealestate.hr/
Características
Tipología
Piso
Contrato
Venta
Planta
1 planta
Plantas del edificio
2
Ascensor
Superficie
159 m²
Habitaciones
5
Dormitorios
4
Balcón
No
Terraza
Garaje, plazas de aparcamiento
1 en garaje privado, 2 en aparcamiento/garaje público
Calefacción
Individual, por estufa
Aire acondicionado
Individual, frío/calor
Información del precio
Precio
€ 950.000
Precio del m²
5.975 €/m²
Eficiencia energética
  • Año de construcción

    2026
  • Calefacción

    Individual, por estufa
  • Aire acondicionado

    Individual, frío/calor
  • Certificación energética

    Inclasificable
Descubre otros ángulos del inmueble
+8
Opciones adicionales

Contactar con el anunciante

O