Terreno urbanizable en Venta

€ 158.700
567 m²

Nota

Anuncio actualizado el 22/01/2026
Descripción

referencia: Z-0191

VRSI - prodaje se građevinsko zemljište od 567 m2 s građevinskom dozvolom!

U blizini Zadra, u mirnom naselju Vrsi nalazi se ovo građevinsko zemljište pravilnog oblika, približnih dimenzija 30x20 m.
Zemljište je na osami, nalazi se 2 kilometra od mora.
Građevinska dozvola je izdana za gradnju vile površine 210 m² s bazenom.
U blizini se nalaze svi potrebni priključci, građevinska dozvola je pravomoćna te se odmah može početi sa gradnjom.
Plaćen je priključak struje.
Vlasništvo uredno 1/1.

Prema projektu villa ima neto korisnu površinu 210 m2 stambene površine, a sastoji se od:
* PRIZEMLJA
- dnevni boravak, blagovaonica i kuhinja,
- spavaća soba 1,
- spavaća soba 2,
- kupaonica 1,
- WC
- hodnik,
- špajza,
- spremište,
- strojarnica za bazen,
- bazen i natkrivena terasa,
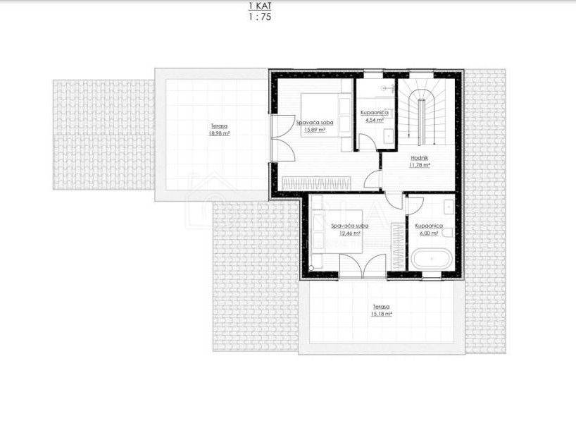
* I KAT
- spavaća soba 3,
- spavaća soba 4,
- kupaonica 2,
- kupaonica 3,
- dvije nenatkrivene terase.

Mjesto Vrsi ima prekrasnu obalu dugu oko 30 km, bogatu prirodnim plažama i uvalama pogodnim za kupanje i odmor u tišini daleko od buke i užurbane svakodnevnice.
Također nudi sav potreban sadržaj za ugodan i kvalitetan život: poštu, mjenjačnicu, bankomat, ljekarnu, trgovine, kafići, sportski centar, privezište itd.
Mjesto Vrsi je udaljenoi cca 5 km od najstarijeg hrvatskog kraljevskog grada Nina, te cca 20 km od Zadra.
Lokacija nudi mir i privatnost, kao i izvrsnu prometnu povezanost.
Buduća nekretnina je idealna za život ili kao turistička investicija.

*KUPAC NE PLAĆA AGENCIJSKU PROVIZIJU.

ID CODE: Z-0191

Iva Prtenjača
Mob: +385 (0)91 400 1414
Tel: +385 (0)99 284 1984
E-mail: iva@perlanekretnine.hr
www.perlanekretnine.hr

Alma Cipurković
Mob: +385 (0)91 400 1616
Tel: +385 (0)99 284 1984
E-mail: alma@perlanekretnine.hr
www.perlanekretnine.hr
Características
Contrato
Venta
Tipología
Terreno urbanizable
Superficie
567 m²
Información del precio
Precio
€ 158.700
Precio del m²
280 €/m²
Descubre otros ángulos del inmueble
+10
Opciones adicionales

Contactar con el anunciante

O